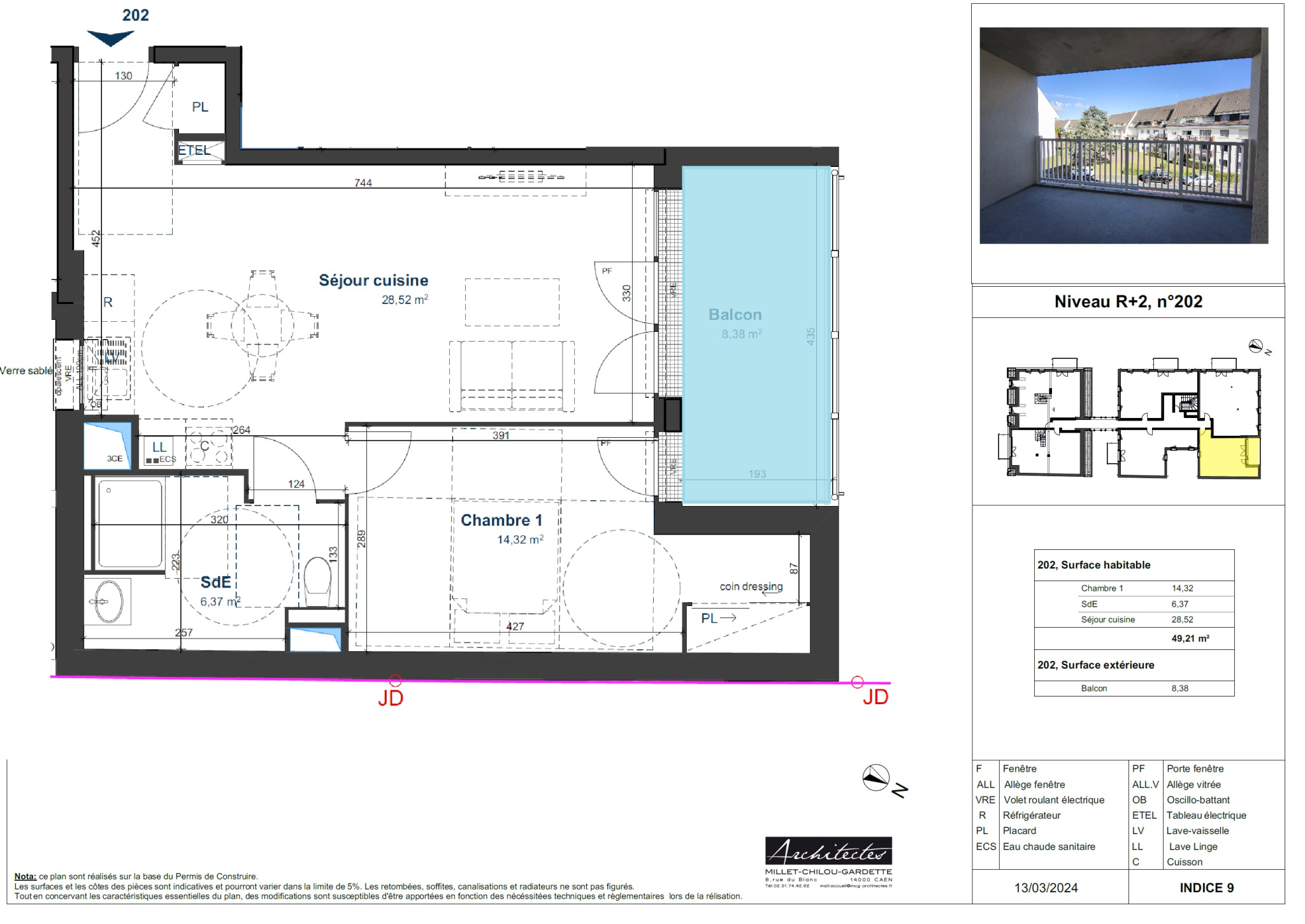
Nuances immobilières vous propose un bel appartement 2/3Pièces de 65m2 à CAEN SAINT OUEN au deuxième étage avec ascenseur au sein d’un environnement de verdure.
L’appartement se présente de la façon suivante :
Une entrée avec placard, une cuisine fermée, un double séjour-salon de 30m2 ( dont une ancienne chambre), une salle de bains, et une chambre.
Vendu avec un garage et une cave.
Un beau balcon bien exposé offrant une vue sur le parc de la résidence.
Rafraichissement à prévoir dans sa globalité.(électricité-Revètement de sol, fenetres bois,cuisine, salle d’eau).
Les atourts: ensoleillement idéal dans l’appartement, des vues agréables, proche des commerces et du futur tramway en prévu 2029).
Les informations sur les risques auxquels ce bien est exposé sont disponibles sur le site Géorisques : www.georisques.gouv.fr’.
Nuances immobilières vous propose un bel emplacement à Cabourg, secteur CASINO, les commerces et la mer à pied…
Ici , nous vous présentons un appartement jamais habité de type 3 Pièces de 68m2 offrant une pièce de vie de 31m2 avec cuisine ouverte donnant sur le balcon, deux chambres avec placard intégré, une salle d’eau (miroir , double vasque, bandeau lumineux) et placard dans l’entrée.
Etage 1 sur 2.(Pas d’ascenseur).
En bonus, un accès privé au jardin clos au niveau 0, avec vue sur espace vert.
Un parking couvert est compris dans le prix.
Habitable sous 3 mois.
‘Les informations sur les risques auxquels ce bien est exposé sont disponibles sur le site Géorisques : www.georisques.gouv.fr’.
Nuances immobilières vous propose un bel emplacement à Cabourg, secteur CASINO, les commerces et la mer à pied…
Ici , nous vous présentons un appartement jamais habité de type 3 Pièces duplex de 68m2 habitable et de 82m2 au sol offrant une pièce de vie de 28m2 avec cuisine ouverte donnant sur le grand balcon, à l’étage deux grandes chambres (12m2 et 13m2) avec placard intégré, une salle d’eau (miroir , double vasque, bandeau lumineux) et placard dans l’entrée.
Etage 2 sur 2.(Pas d’ascenseur et moins de charges).
Belle vue sur un grand espace vert.
Un parking couvert est compris dans le prix.
Habitable sous 3 mois.
‘Les informations sur les risques auxquels ce bien est exposé sont disponibles sur le site Géorisques : www.georisques.gouv.fr’.
Nuances immobilières vous propose un bel emplacement à Cabourg, secteur CASINO, les commerces et la mer à pied…
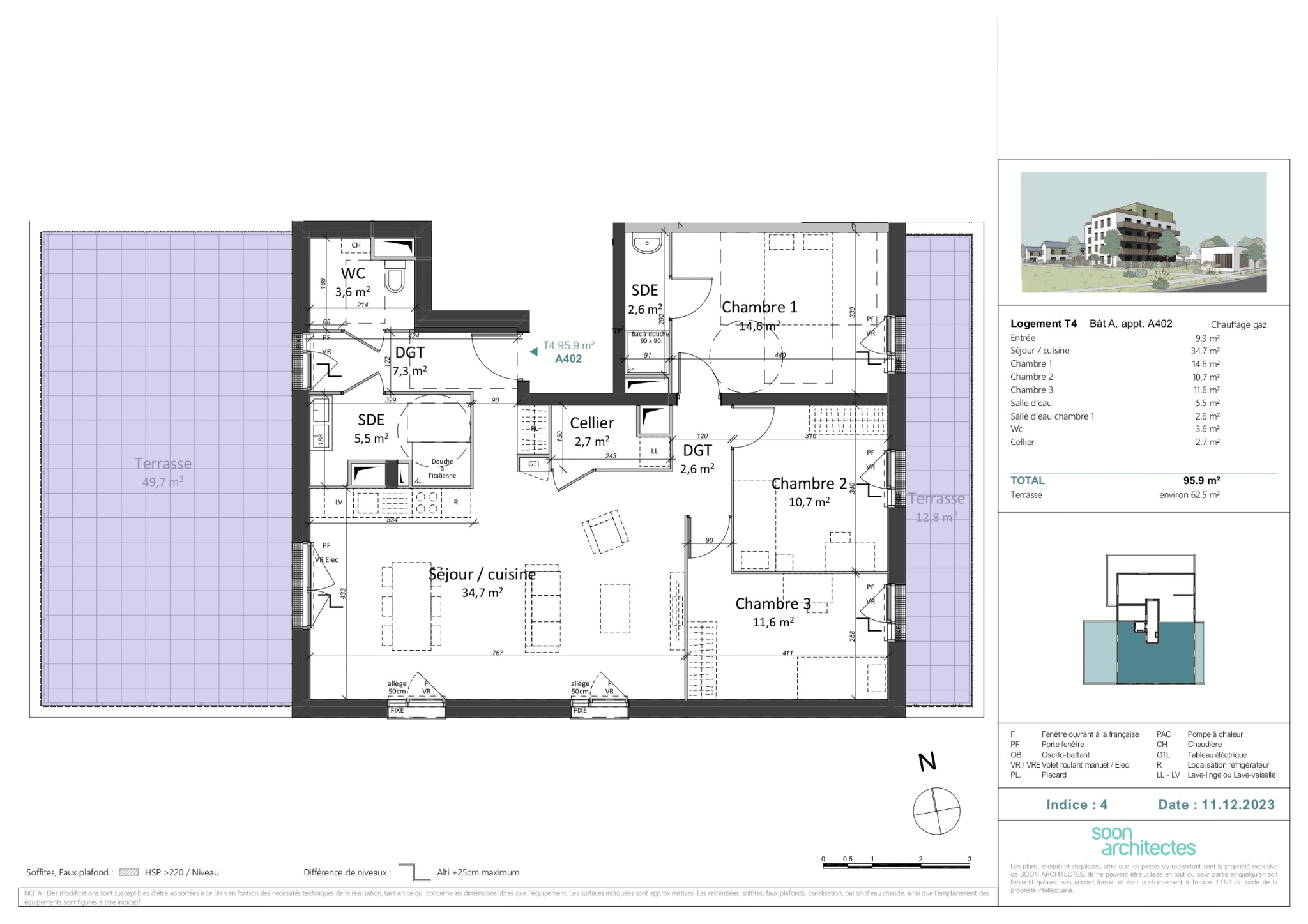
Ici , nous vous présentons un appartement au dernier étage jamais habité de type 4 Pièces duplex de 88m2 habitable et de 96m2 au sol offrant une pièce de vie de 27m2 avec cuisine ouverte donnant sur le grand balcon,un espace celier-rangement, deux chambres, une salle d’eau aménagée, puis à l’étage une grande chambre de plus de 12 m2 avec placard, et une deuxième salle d’eau aménagée avec toilettes.
Etage 2 sur 2.(Pas d’ascenseur et moins de charges).
Belle vue sur un grand espace vert.
Chauffage individuel.
Un parking couvert est compris dans le prix.
Habitable sous 3 mois.
‘Les informations sur les risques auxquels ce bien est exposé sont disponibles sur le site Géorisques : www.georisques.gouv.fr’.
Dernière opporttunité !
Frais de notaires offerts + 1500EUR par pièces.
Nuances immobilières vous propose sur les hauteur de Caen au niveau de la prairie, au sein d’une résidence de 3 étages seulement, la possibilité d’acquérir un appartement avec balcon bien exposée et à prix maitrisé pour une résidence principale et selon revenus*plafonds.
Ici, nous vous présentons ce 3Pièces ouvert sur un extérieur, et exposé Sud et Ouest.Vendu avec un parking privé.
Cet appartement se compose d’un espace séjour salon de 28m2, une salle d’eau avec douche à l’italienne et toilette et deux grandes chambres.
Parking en option possible. Habitable ÉTÉ 2026
Dernières normes phoniques et thermiques.Commerces,marché,boulangerie, à 9 minutes en vélo.
Accès au tramway en 5 minutes et facile pour rejoindre le centre de Caen.
‘Les informations sur les risques auxquels ce bien est exposé sont disponibles sur le site Géorisques : www.georisques.gouv.fr’.
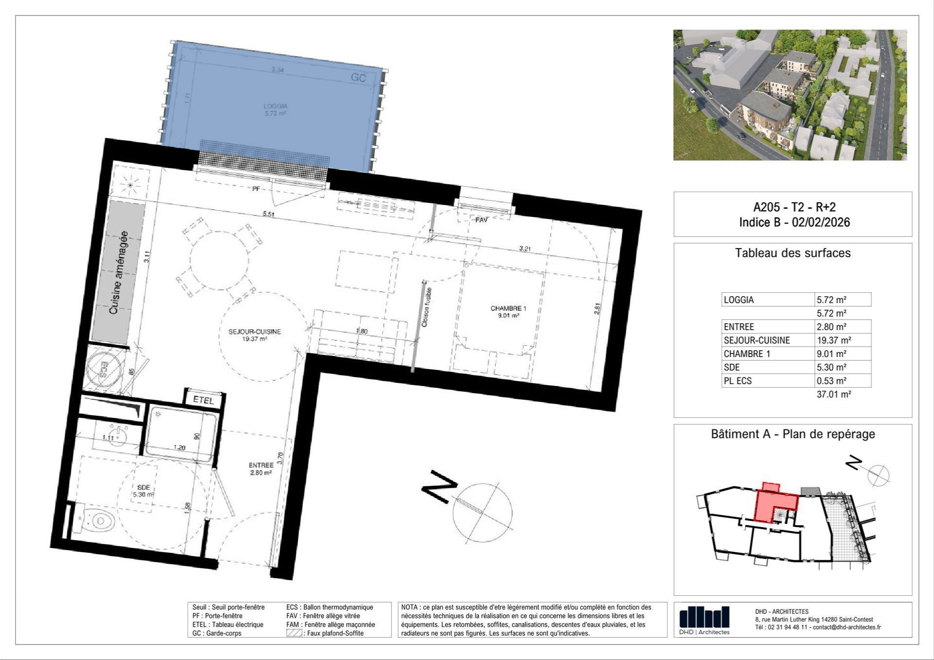
Nuances Immobilières vous propose à Caen, quartier la haie-vignée, la possibilité de vous offrir un appartement de type 4P au 4em étage avec ascenseur offrant de superbes vues lointaines sur la ville de Caen.
Ce bien propose une pièce de vie de 35m2 ouverte sur un bel extérieur profond, puis 3 chambres dont une avec pièce d’eau, le tout donnant coté promenade Napoléon., une salle d’eau, et toilettes indépendantes, en complément un espace buanderie pour votre confort.
Cet appartement propose un stationnement double en sous sol compris dans le prix.
Futur Tramway, bus et accès commerces à moins de 5 minutes.
Habitable 2027.
‘Les informations sur les risques auxquels ce bien est exposé sont disponibles sur le site Géorisques : www.georisques.gouv.fr’.
Nuances Immobilières vous propose à Caen, quartier la haie-vigné, la possibilité de vous offrir un beau 2P de 40m2 à l’avant dernier étage avec ascenseur et un balcon de 5m2.
Ce bien propose un plan parfait, avec une pièce de vie de 20m2 ouverte sur l’extérieur, et d’une chambre de plus de 12m2 plus un dressing pour votre confort, une salle d’eau avec toilette dans l’entrée.
Vendu avec un parking au sous sol.
Futur Tramway, bus et accès commerces à moins de 5 minutes.
Habitable 2027.
‘Les informations sur les risques auxquels ce bien est exposé sont disponibles sur le site Géorisques : www.georisques.gouv.fr’.
Haut de gamme en vue.
Nuances immobilières vous propose à OUISTREHAM Bourg , une résidence de grand standing de seulement 2 étages avec ascenseur offrant des prestations de premier plan et des logements volumineux,.
Ici, nous vous présentons un beau 4Pièces de 80m2 + balcon profond de 14m2 exposé plein sud et Est, 2 parkings dont 1 au sous sol.
L’appartement se compose d’une pièces de vie de 30m2 ouverte sur le balcon terrasse profond de 14m2 (3.2m*4.3m), 3 chambres dont une de 11m2,deux pièces d’eau, et wc indépendant , puis un dressing.
Particularité : Un appartement offrant un superbe extérieur.
Idéal pour une résidence secondaire ou une future résidence principale.
Dernières normes phoniques et thermiques.
Chauffage par pompe à chaleur.
Personnalisation possible !
Habitable dès 2027
‘Les informations sur les risques auxquels ce bien est exposé sont disponibles sur le site Géorisques : www.georisques.gouv.fr’.
Nuances Immobilières vous propose à Blainville sur Orne à deux pas du centre commercial et de ses commerces, un appartement de type 4Pièces de 84m2 exposé Est et Sud au 3ème étage avec ascenseur offrant une terrasse de 26m2.
Appartement ultra lumineux de par ses nombreuses ouvertures sur l’extérieur.
Une pièce de vie de 32m2 ouverte sur la terrasse de 24m2, 3 chambres donnant accès à la terrasse, wc indépendant, deux pièces d’eau, et un cellier.
Chauffage par pompe à chaleur.
Vendu avec 2 parkings privés.
Faibles charges à prévoir.
Dernières normes phoniques et thermiques.
Habitable en FIN 2026.
‘Les informations sur les risques auxquels ce bien est exposé sont disponibles sur le site Géorisques : www.georisques.gouv.fr’.
Nuances Immobilières vous propose à Caen, quartier la haie-vigné, la possibilité de vous offrir un beau 2P de 40m2 au 2ème étage avec ascenseur et un balcon de 6m2.
Ce bien propose un plan parfait, avec une pièce de vie de 19m2 ouverte sur l’extérieur, et d’une chambre de plus de 11m2 également ouverte sur l’extérieur, une salle d’eau avec toilette dans l’entrée.
Vendu avec un parking au sous sol.
Futur Tramway, bus et accès commerces à moins de 5 minutes.
Habitable 2027.
‘Les informations sur les risques auxquels ce bien est exposé sont disponibles sur le site Géorisques : www.georisques.gouv.fr’.
Nuances immobilières vous propose à Caen Rive Gauche, à deux pas du Zénith de Caen. Une nouvelle résidence de 3 étages seulement et en retrait de la rue.
Ici, nous vous présentons un appartement de type 3Pièces de 62m2 situé en Rez-de-Jardin avec une terrasse de 9m2, exposée Sud et Ouest donnant sur le coté intérieur de la résidence au calme.
Un grand séjour salon avec cuisine de 27m2 ouvert sur l’extérieur, puis 2 chambres (9m2 et 11m2) et une pièce d’eau, wc indépendant, 1 grand placard dans l’entrée.
Un parking intérieur privé est compris dans le prix.
Habitable 2027.
A deux pas de la future station de tramway.
Dernières normes phoniques et thermiques.
Les informations sur les risques auxquels ce bien est exposé sont disponibles sur le site Géorisques : www.georisques.gouv.fr’.
Nuances immobilières vous propose à Caen BEAULIEU, la possibilité d’acquérir un beau 4P de 87m2 avec terrasse de 72m2 exposée plein Sud, en étage avec ascenseur, parking sous-sol et garage fermé inclus.
Une pièce de vie lumineuse de 35m2 (double expo Sud-Ouest) ouvrant sur l’extérieur, 3 chambres, deux salles d’eau dont une privative, un cellier, un placard dans l’entrée et wc indépendant.
Chauffage individuel. Vendu avec une cuisine aménagée !
Accès facile en 5 minutes à pieds pour se rendre au SUPER U, boulangerie…
Arrivée tramway prévue pour 2029 à proximité. Accès périphérique facile.
Habitable pour 2028
Résidence de 24 logements.
Dernières normes phoniques et thermiques.
‘Les informations sur les risques auxquels ce bien est exposé sont disponibles sur le site Géorisques : www.georisques.gouv.fr’.
Nuances Immobilières vous propose aux portes de Caen ,dans le centre bourg de IFS à deux pas des commerces, un appartement de type 4Pièces de 91m2 exposé Sud au 1er étage avec ascenseur, un bien proposé avec deux balcons pour 17m2 en tout, une pièce de vie avec cuisine de 35m2, trois chambres dont une grande de plus de 12m2 avec balcon, une salle d’eau ,wc indépendant, et un cellier.
Vendu avec 2 parkings privés .
Faibles charges à prévoir.
Dernières normes phoniques et thermiques.Ascenseur.
Visite possible.
Accès sécurisé, ascenseur, sans marche.PMR.
DPE : C
Particularité: Une exposition parfaite.
‘Les informations sur les risques auxquels ce bien est exposé sont disponibles sur le site Géorisques : www.georisques.gouv.fr’.
Offre commerciale en cours limitée dans le temps et sous réserve de disponibilité.
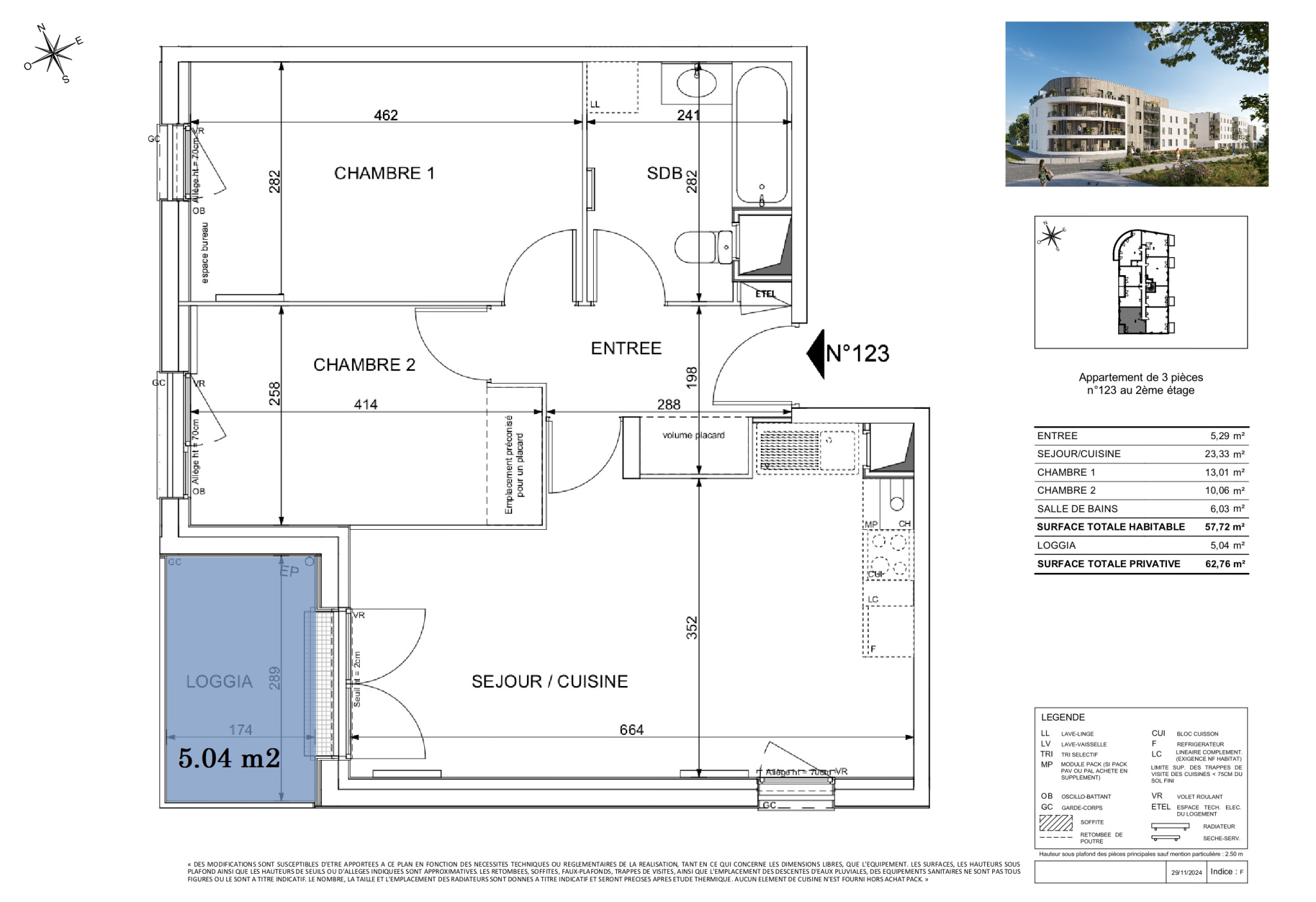
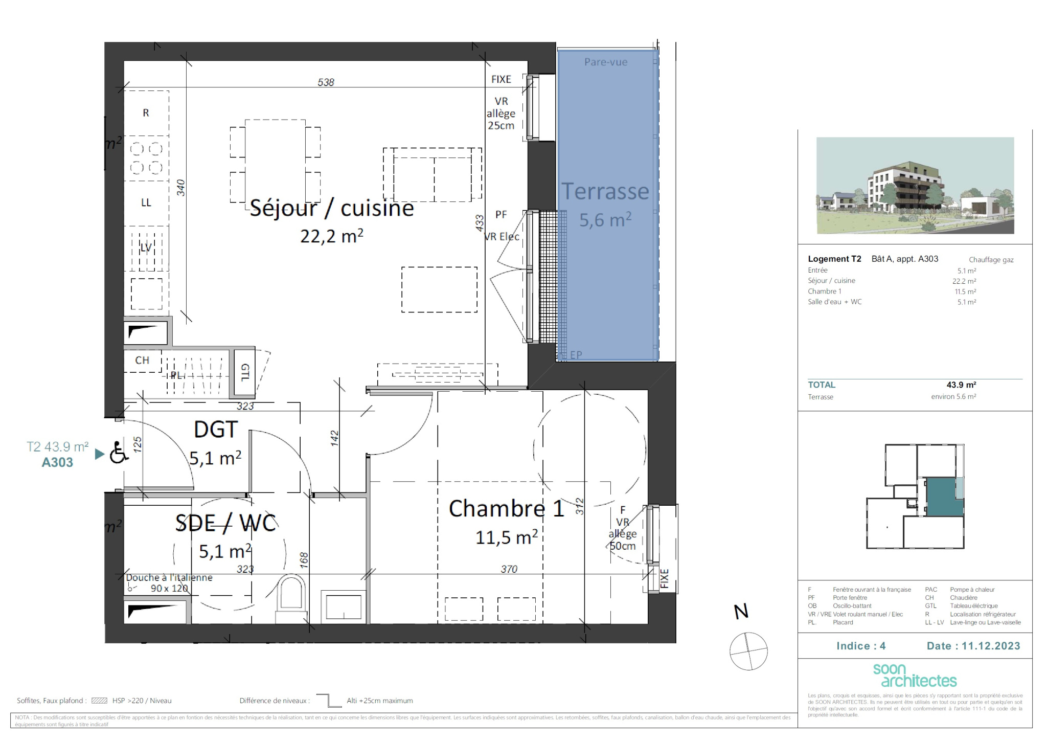
Nuances immobilières vous propose aux portes de Caen, à Colombelles Jean Jaurès, un Appartement de 3pièces de 58m2 au 2ème étage sur 3 avec balcon.
Il se compose d’une pièce de vie principale de 22m2 ouverte sur l’extérieur, de deux chambres (13m2 et 10m2) et une salle de bain avec toilettes.
2 Parkings en sous sol compris dans le prix.
Dernières normes phoniques et thermiques
Habitable FIN 2026
‘Les informations sur les risques auxquels ce bien est exposé sont disponibles sur le site Géorisques : www.georisques.gouv.fr’.
Bel emplacement avec commerces à pieds, et le marché.
Offres commerciales en cours !
Renseignez vous !
Nuances immobilières vous propose à OUISTREHAM Bourg, une résidence de grand standing de seulement 2 étages avec ascenseur offrant des prestations de premier plan et un rare emplacement permettant d’accéder aux commerces à pied.
Ici, nous vous présentons un beau 2Pièces compact de 33m2 avec balcon de 5.40m2, 1 parking compris dans le prix.
L’appartement se compose d’une pièces de vie de 18m2 ouver sur le balcon au calme 1 chambre de 10.24m2, une pièce d’eau et wc indépendant. Placard de rangement.
Idéal pour une résidence secondaire ou un trés bon investissement locatif.
Dernières normes phoniques et thermiques.
Chauffage par pompe à chaleur.
Habitable 2em semestre 2027
‘Les informations sur les risques auxquels ce bien est exposé sont disponibles sur le site Géorisques : www.georisques.gouv.fr’.
Nuances immobilières vous propose à Honfleur sur les hauteurs dans un environnement campagne et proche du centre, un appartement de standing jamais habité de 73m2 avec terrasse disponible immédiatement et aux dernières normes.
Il se compose d’une entrée avec placard,toilettes invités, une grande pièce de vie de 34m2 ouverte la terrasse de 35m2 exposée Sud et Ouest, chambres (11.6m2 et 9.60m2 ), puis salle pièces d’eau et toilettes.
Etage 1 sur 3 avec ascenseur.
Parking privé inclus
Accès rapide au centre de Honfleur.
Visite possible.
‘Les informations sur les risques auxquels ce bien est exposé sont disponibles sur le site Géorisques : www.georisques.gouv.fr’.
Nuances Immobilières vous propose à Cormelles le Royal centre dans un bel environnement clos de murs, et dans un ensemble résidentiel composé de 7 maisons et de 38 appartements, un appartement 3Pièces de 68m2 profitant d’une exposition Est et Ouest.
L’appartement situé au 1er étage de la résidence se présente par une pièce de vie de 26m2 ouverte sur l’extérieur, deux chambres dont une grande de plus de 11m2, une salle d’eau et un wc indépendant.
Deux stationnements compris dans le prix.
Hall d’entrée décoré et sécurisé.
Local vélo.
Dernières normes phoniques et thermiques.
DPE :B
Bel emplacement à proximité immédiate de tous les commerces, transports en commun, et écoles
Visite possible
‘Les informations sur les risques auxquels ce bien est exposé sont disponibles sur le site Géorisques : www.georisques.gouv.fr’.
Nuances immobilières vous propose au Nord Ouest de Caen, à COURSEULLES SUR MER, au sein d’un environnement résidentiel composé de 4 résidences de 3 étages, un appartement exposé Sud et Ouest.
Ici, nous vous présentons un 3Pièces de 54m2 au premier étage bénéficiant d’un balcon, vendu avec 1 parking privé.
Cet appartement se compose d’une entrée avec placard, d’un espace séjour salon de 20m2 ouvrant sur l’extérieur, un coin cuisine avec fenêtre, une salle d’eau avec wc, et deux chambres dont une de plus de 11m2.
Dernières normes phoniques et thermiques. Commerces, marché, boulangerie, à 9 minutes en vélo.
Habitable pour 2027.
‘Les informations sur les risques auxquels ce bien est exposé sont disponibles sur le site Géorisques : www.georisques.gouv.fr’.
Nuances immobilières vous propose au Nord Ouest de Caen, à COURSEULLES SUR MER, au sein d’un environnement résidentiel composé de 4 résidences de 3 étages, un appartement avec balcon.
Ici, nous vous présentons un 2Pièces de 39m2 au deuxième étage bénéficiant d’un balconde 5m2 exposé soleil du matin.
Cet appartement se compose d’une entrée avec placard, d’un espace séjour salon de 21m2 ouvrant sur l’extérieur, un coin cuisine, une salle d’eau avec wc, et une chambre de plus de 12m2.
Dernières normes phoniques et thermiques. Commerces, marché, boulangerie, à 9 minutes en vélo.
Chauffage individuel.
Habitable pour 2027.
‘Les informations sur les risques auxquels ce bien est exposé sont disponibles sur le site Géorisques : www.georisques.gouv.fr’.
Nuances immobilières vous propose au Nord Ouest de Caen, à COURSEULLES SUR MER, au sein d’un environnement résidentiel composé de 4 résidences de 3 étages, un appartement avec balcon.
Ici, nous vous présentons un 2Pièces de 40m2 au deuxième étage bénéficiant d’un balcon de 5m2 exposé Est.
Cet appartement se compose d’une entrée avec placard, d’un espace séjour salon de 23m2 ouvrant sur l’extérieur, un coin cuisine, une salle d’eau avec wc, et une chambre de plus de 12m2.
Dernières normes phoniques et thermiques. Commerces, marché, boulangerie, à 9 minutes en vélo.
Chauffage individuel
Habitable pour 2027.
‘Les informations sur les risques auxquels ce bien est exposé sont disponibles sur le site Géorisques : www.georisques.gouv.fr’.
Nuances immobilières vous propose au Nord Ouest de Caen, à COURSEULLES SUR MER, au sein d’un environnement résidentiel composé de 4 résidences de 3 étages, un appartement 3P avec un extérieur profitant d’une double exposition.
Ici, nous vous présentons un 3Pièces de 54m2 au premier étage bénéficiant d’un balcon.
Cet appartement se compose d’une entrée avec un cellier, d’un espace séjour salon de 22m2 ouvrant sur l’extérieur, un coin cuisine, une salle d’eau avec wc, et deux chambres dont une de plus de 11m2.
Particularité : Un séjour profitant d’une exposition Sud et Est
Dernières normes phoniques et thermiques. Commerces, marché, boulangerie, à 9 minutes en vélo.
Habitable pour 2027.
‘Les informations sur les risques auxquels ce bien est exposé sont disponibles sur le site Géorisques : www.georisques.gouv.fr’.
Bel emplacement avec commerces à pieds, et le marché.
Offres commerciales en cours !
Renseignez vous !
Nuances immobilières vous propose à OUISTREHAM Bourg, une résidence de grand standing de seulement 2 étages avec ascenseur offrant des prestations de premier plan et un rare emplacement permettant d’accéder aux commerces à pied.
Ici, nous vous présentons un beau 2Pièces compact de 33m2 avec balcon,1 parking compris dans le prix.
L’appartement se compose d’une pièces de vie de 18m2 ouver sur l’extérieur au calme, puis 1 chambre de 10m2, une pièce d’eau et wc indépendant. Placard de rangement.
Idéal pour une résidence secondaire ou un trés bon investissement locatif.
Dernières normes phoniques et thermiques.
Chauffage par pompe à chaleur.
Habitable 2em semestre 2027
‘Les informations sur les risques auxquels ce bien est exposé sont disponibles sur le site Géorisques : www.georisques.gouv.fr’.
Bel emplacement avec commerces à pieds, et le marché.
Offres commerciales en cours !
Renseignez vous !
Nuances immobilières vous propose à OUISTREHAM Bourg, une résidence de grand standing de seulement 2 étages avec ascenseur offrant des prestations de premier plan et un rare emplacement permettant d’accéder aux commerces à pied.
Ici, nous vous présentons un beau STUDIO de 22m2 avec terrasse et jardin,1 parking compris dans le prix.
L’appartement se compose d’une pièce de vie de 17m2 ouverte sur le jardin au calme, une pièce d’eau et wc.
Un parking inclus dans le prix.
Dernières normes phoniques et thermiques.
Chauffage par pompe à chaleur.
Habitable 2ème semestre 2027
‘Les informations sur les risques auxquels ce bien est exposé sont disponibles sur le site Géorisques : www.georisques.gouv.fr’.
Offre commerciale en cours limitée dans le temps et sous réserve de disponibilités.
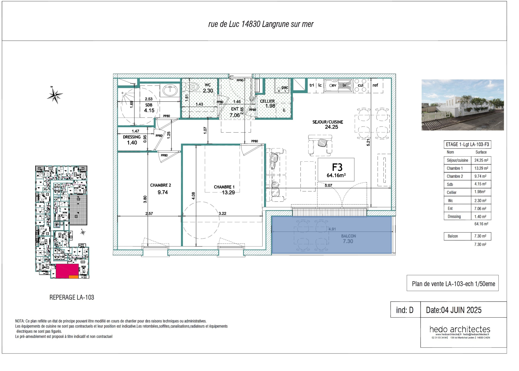
Nuances immobilières vous propose un emplacement exceptionel à Langrune sur mer.
Attention : Vue mer ici
Ici , nous vous présentons au sein d’une petite résidence de seulement un étage et 17 logements, un appartement de type 4 pièces traversant de 84m2 au 1er, et dernier étage avec ascenseur disposant d’une pièce de vie de 33m2 ouverte sur une terrasse de 10m2 en angle, puis trois chambres (12m2-8m2 et 10m2) , une suite parentale comprenant deux pièces d’eau, toilettes indépendants.
1 Garage et un parking privé compris dans le prix.
Habitable 2027
‘Les informations sur les risques auxquels ce bien est exposé sont disponibles sur le site Géorisques : www.georisques.gouv.fr’.
Offre commerciale en cours limitée dans le temps et sous réserve de disponibilités.
Nuances immobilières vous propose un emplacement exceptionel à Langrune sur mer.
Ici , nous vous présentons au sein d’une petite résidence de seulement un étage et 17 logements, un appartement de type 5 pièces traversant de 100m2 au 1er, et dernier étage avec ascenseur disposant d’une pièce de vie de 42m2 ouverte sur un premier balcon, puis trois chambres dont 2 avec accès au second balcon , une suite parentale comprenant une pièce d’eau privative ,une autre salle d’eau, toilettes indépendants.
1 Garage et un parking privé compris dans le prix.
Habitable 2027
‘Les informations sur les risques auxquels ce bien est exposé sont disponibles sur le site Géorisques : www.georisques.gouv.fr’.
Offre commerciale en cours limitée dans le temps et sous réserve de disponibilités.
Nuances immobilières vous propose un emplacement exceptionel à Langrune sur mer.
Attention : Appartement avec vue mer !
Ici , nous vous présentons au sein d’une petite résidence de seulement un étage et 17 logements, un appartement de type 5 pièces de 100m2 au 1er et dernier étage avec ascenseur disposant d’une pièce de vie de 32m2 ouverte sur la terrasse d’angle de 10m2, deux chambres (12m2, 13m2) et une suite parentale (20m2) comprenant un dressing et une pièce d’eau privative ,une autre salle d’eau, toilettes indépendants, un celier.
2 Garages compris dans le prix.
Habitable 2027
‘Les informations sur les risques auxquels ce bien est exposé sont disponibles sur le site Géorisques : www.georisques.gouv.fr’.
Offre commerciale en cours limitée dans le temps et sous réserve de disponibilités.
Nuances immobilières vous propose un emplacement exceptionel à Langrune sur mer.
Ici, nous vous présentons au sein d’une petite résidence de seulement un étage et 17 logements, un appartement de type 3 pièces de 64m2 au 1er et dernier étage avec ascenseur disposant d’une pièce de vie de 24m2 ouverte sur le grand balcon de 7m2 au calme, une chambre de plus de 13m2,une autre chambre, salle d’eau, toilettes indépendants, dressing et un espace celier pour votre confort.
2 Parking compris dans le prix.
Habitable 2027
‘Les informations sur les risques auxquels ce bien est exposé sont disponibles sur le site Géorisques : www.georisques.gouv.fr’.
Offre commerciale en cours limitée dans le temps et sous réserve de disponibilités.
Nuances immobilières vous propose un emplacement exceptionel à Langrune sur mer.
Ici, nous vous présentons au sein d’une petite résidence de seulement un étage et 17 logements, un grand appartement de type 2 pièces de 50m2 disposant d’une pièce de vie de 24m2 ouverte sur le jardin de 34m2 clos au calme, une chambre de plus de 13m2,salle d’eau, et toilettes indépendants.
2 Parkings compris dans le prix.
Habitable 2027
‘Les informations sur les risques auxquels ce bien est exposé sont disponibles sur le site Géorisques : www.georisques.gouv.fr’.
Offre commerciale en cours limitée dans le temps et sous réserve de disponibilités.
Nuances immobilières vous propose un emplacement exceptionel à Langrune sur mer.
Attention : ici appartement avec echapée vue mer
Ici, nous vous présentons au sein d’une petite résidence de seulement un étage et 17 logements, un appartement de type 3 pièces de 68m2 au 1er et dernier étage avec ascenseur disposant d’une pièce de vie de 30m2 ouverte sur la grande terrasse de 6m2 au calme, une chambre de plus de 13m2, une autre chambre, une salle d’eau, toilettes indépendants, et un espace celier pour votre confort.
2 Parking compris dans le prix.
Habitable 2027
‘Les informations sur les risques auxquels ce bien est exposé sont disponibles sur le site Géorisques : www.georisques.gouv.fr’.
Haut de gamme en vue.
Nuances immobilières vous propose à OUISTREHAM Bourg, une résidence de grand standing de seulement 2 étages avec ascenseur offrant des prestations de premier plan et un rare emplacement permettant d’accéder aux commerces à pied.
Ici, nous vous présentons un beau 3Pièces de 65m2 avec jardin + terrasse profonde de 14m2 exposée plein sud et Est, 2 parkings dont l’un au sous sol.
L’appartement se compose d’une pièces de vie de 26m2 ouverte sur la terrasse et le jardin clos, 2 chambres (10m2 et 12m2 ), une pièce d’eau et wc indépendant, plus un placard dans l’entrée.
Idéal pour une résidence secondaire ou une future résidence principale.
Dernières normes phoniques et thermiques.
Chauffage par pompe à chaleur.
Personnalisation possible !
Habitable dès 2027
‘Les informations sur les risques auxquels ce bien est exposé sont disponibles sur le site Géorisques : www.georisques.gouv.fr’.
Dernière opportunité !
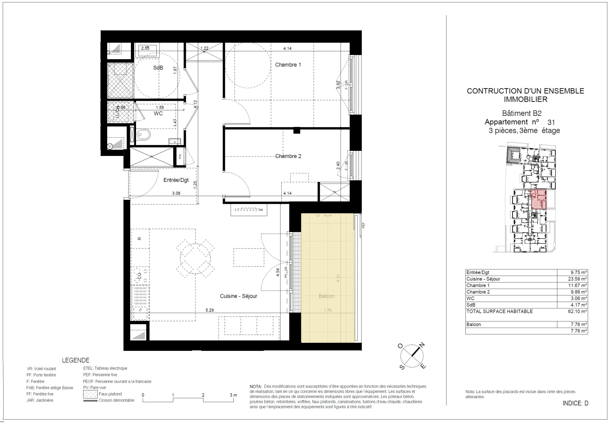
Nuances immobilieres vous propose d’acquérir un grand 2Pièces de 62.10m2 au 1er étage, exposé au sud et Est pour la pièce de vie ouvrant sur sa loggia de 8m2, à la fois proche des Rives de l’Orne et à 30 metres de la rue saint Jean dans une rue au calme.
Ici, nous vous présentons cet appartement confortable et traversant offrant une pièce de vie de plus de 30m2, et une chambre de 15m2.
Parking inclus.
Un bien idéal pour qui recherche le centre de Caen au calme…
Dernières normes phoniques et thermiques.
Habitable été 2026
Les informations sur les risques auxquels ce bien est exposé sont disponibles sur le site Géorisques : www.georisques.gouv.fr’.
Haut de gamme en vue.
Nuances immobilières vous propose à OUISTREHAM Bourg, une résidence de grand standing de seulement 2 étages avec ascenseur offrant des prestations de premier plan et un rare emplacement permettant d’accéder aux commerces à pied.
Ici, nous vous présentons un beau 3Pièces de 61m2 au 1er étage + terrasse profonde de 14m2 exposée plein sud et Est, 2 parkings dont l’un au sous sol.
L’appartement se compose d’une pièces de vie de 22m2 ouverte sur la terrasse, 2 chambres (10m2 et 12m2 ), une pièce d’eau et wc indépendant, plus un placard dans l’entrée.
Idéal pour une résidence secondaire ou une future résidence principale.
Dernières normes phoniques et thermiques.
Chauffage par pompe à chaleur.
Personnalisation possible !
Habitable dès 2027
‘Les informations sur les risques auxquels ce bien est exposé sont disponibles sur le site Géorisques : www.georisques.gouv.fr’.
Nuances immobilières vous propose à Caen,proche du rond point de la demi lune, et à la limite de mondeville, un rare appartement de 4Pièces terrasse avec ascenseur, exposé Sud et ouest ,et 2 parkings et une cave compris dans le prix.
Cet appartement se situe rue de trouville à Caen, et bénéficiera d’un extérieur exceptionel de 18m2 !!!
Situé au dernier étage par ascenseur, il se compose d’une entrée avec placard ouvrant sur la pièce de vie principale de 25m2 avec accès à la terrasse parfaitement exposée et offrant des vues lointaines.
Puis coté nuit, un dégagement désservant 3 chambres dont deux de plus de 11m2, et deux pièces d’eau.
Un appartement idéal et rare !
Vendu avec 2 parkings et une cave
Habitable début 2027
Dernières normes phoniques et thermiques.
‘Les informations sur les risques auxquels ce bien est exposé sont disponibles sur le site Géorisques : www.georisques.gouv.fr’.
Offre commerciale en cours !
Nuances immobilières vous propose à Caen rive gauche, une résidence de standing à deux pas de l’hotel de police et du Leclerc LANFRANC.
Ici, nous vous présentons un appartement de 4 Pièces d’une surface habitable de 81m2 exposé Plein sud au calme et offrant deux vastes balcons en étage supérieur !
Il se compose d’une pièce de vie de 26m2, de 3 chambres de 10m2-11m2 et 12m2, deux salle d’eau, et 2 toilettes.
Belles prestations…
Parking sous-sol compris dans le prix.
Habitable dans 18 mois.
‘Les informations sur les risques auxquels ce bien est exposé sont disponibles sur le site Géorisques : www.georisques.gouv.fr’.
Offre commerciale en cours !
Nuances immobilières vous propose à Caen rive gauche, une résidence de standing à deux pas de l’hotel de police et du Leclerc LANFRANC.
Ici, nous vous présentons un appartement de 4 Pièces d’une surface habitable de 98m2 exposé Plein sud au calme et offrant une terrasse de 32m2 au dernier étage avec de belles vues lointaines sur Caen !
Il se compose d’une pièce de vie de 34m2, de 3 chambres de 9m2-10m2 et 12m2, un dressing, deux salle d’eau, une buanderie et 2 toilettes.
Belles prestations…
2 Parkings sous-sol compris dans le prix.
Habitable dans 18 mois.
‘Les informations sur les risques auxquels ce bien est exposé sont disponibles sur le site Géorisques : www.georisques.gouv.fr’.
Nuances immobilières vous propose un superbe appartement de 3Pièces ouvert sur une belle terrasse de 14m2, exposée au Sud.
L’appartement se situe au sein d’une petite résidence de 2 étages seulement, sans ascenseur, desservie par une coursive.
Depuis l’entrée, vous découvrirez la pièce de vie principale de 30m2 avec cuisine ouverte, le tout donnant sur l’extérieur, puis deux chambres et enfin une pièce d’eau avec toillettes proche de l’entrée.
Particularité appréciable : Vendu avec un cellier et une place de parking privative.
Habitable 1T 2027
Les informations sur les risques auxquels ce bien est exposé sont disponibles sur le site Géorisques : www.georisques.gouv.fr’.
Nuances immobilières vous propose un superbe appartement de 3Pièces au dernier étage parfaitement exposé au Sud avec balcon de 14m2.
L’appartement se situe au sein d’une petite résidence de 2 étages seulement, sans ascenseur, desservie par une coursive.
Depuis l’entrée, vous découvrirez la pièce de vie principale de 30m2 avec coin cuisine disposant de sa fenêtre, 2 chambres, et enfin une pièce d’eau avec toillettes avec fenetre.
Particularité appréciable : Vendu avec un cellier et une place de parking privative.
Habitable début 2027.
Les informations sur les risques auxquels ce bien est exposé sont disponibles sur le site Géorisques : www.georisques.gouv.fr’.
Nuances immobilières vous propose un superbe appartement de 3Pièces avec terrasse de 15m2 exposée au Sud.
L’appartement se situe au sein d’une petite résidence de 2 étages seulement, sans ascenseur, desservie par une coursive.
Depuis l’entrée, vous découvrirez la pièce de vie principale de 25m2 avec coin cuisine, 2 chambres dont une de 11m2 avec placard, et enfin une pièce d’eau avec toillettes.
Particularité appréciable : Vendu avec un cellier et une place de parking privative.
Habitable début 2027.
Les informations sur les risques auxquels ce bien est exposé sont disponibles sur le site Géorisques : www.georisques.gouv.fr’.
Nuances immobilières vous propose un superbe appartement de 3Pièces ouvert sur son jardin exposé au Sud.
L’appartement se situe au sein d’une petite résidence de 2 étages seulement, sans ascenseur, desservie par une coursive.
Depuis l’entrée, vous découvrirez la pièce de vie principale de 25m2 avec cuisine séparée et ouverte (avec fenetre), le tout donnant sur l’extérieur, puis deux chambres et enfin une pièce d’eau avec toillettes proche de l’entrée.
Particularité appréciable : Vendu avec un cellier et une place de parking privative.
Habitable 1T 2027
Les informations sur les risques auxquels ce bien est exposé sont disponibles sur le site Géorisques : www.georisques.gouv.fr’.
Nuances immobilières vous propose à OUISTREHAM, à 15 minutes à pied de la plage, un appartement de 3Pièces de 64m2 au 2ème étage avec ascenseur, disposant d’un balcon exposé au Sud, une cave, un parking extérieur et un parking en sous sol.
Cet appartement se situe au sein d’une belle résidence composé de 18 appartements.
Idéal pour une résidence secondaire, ou une future résidence principale.
DPE:C
Dernières normes phoniques et thermiques.
Habitable immédiatement
‘Les informations sur les risques auxquels ce bien est exposé sont disponibles sur le site Géorisques : www.georisques.gouv.fr’.
Superbes offres commerciales en cours -Renseignez-vous !!!
Nuances immobilières vous propose à Colombelles, un appartement de 85m2 aux dernières normes phoniques et thermiques.
Ce bien propose de beaux volumes , tel qu’une pièce de vie avec cuisine de 33m2 ouverte sur la loggia de 10m2, un espace dressing dans le couloir, et deux chambres faisant entre 10m2 et 12m2 .
Particularité: 3 Stationnements et une cave compris dans le prix pour votre confort et celui de vos invités !
DPE : C
Habitable immédiatement.
Viste possible.
renseignement détaillé en agence pour un achat en résidence principale
‘Les informations sur les risques auxquels ce bien est exposé sont disponibles sur le site Géorisques : www.georisques.gouv.fr’.
Nuances immobilières vous propose à OUISTREHAM, à 15 minutes à pied de la plage, un appartement de 2Pièces situé au dernier étage proposant un beau balcon de 8m2, une cave, un parking au sous sol et un parking extérieur compris dans le prix. Idéal locatif.
Cet appartement se situe au sein d’une belle résidence composée de 18 appartements seulement avec ascenseur.
Idéal pour une résidence secondaire ou une future résidence principale.
DPE : C
Dernières normes phoniques et thermiques.
Habitable immédiatement
‘Les informations sur les risques auxquels ce bien est exposé sont disponibles sur le site Géorisques : www.georisques.gouv.fr’.
Offre commerciale en cours limitée dans le temps et sous réserve de disponibilité
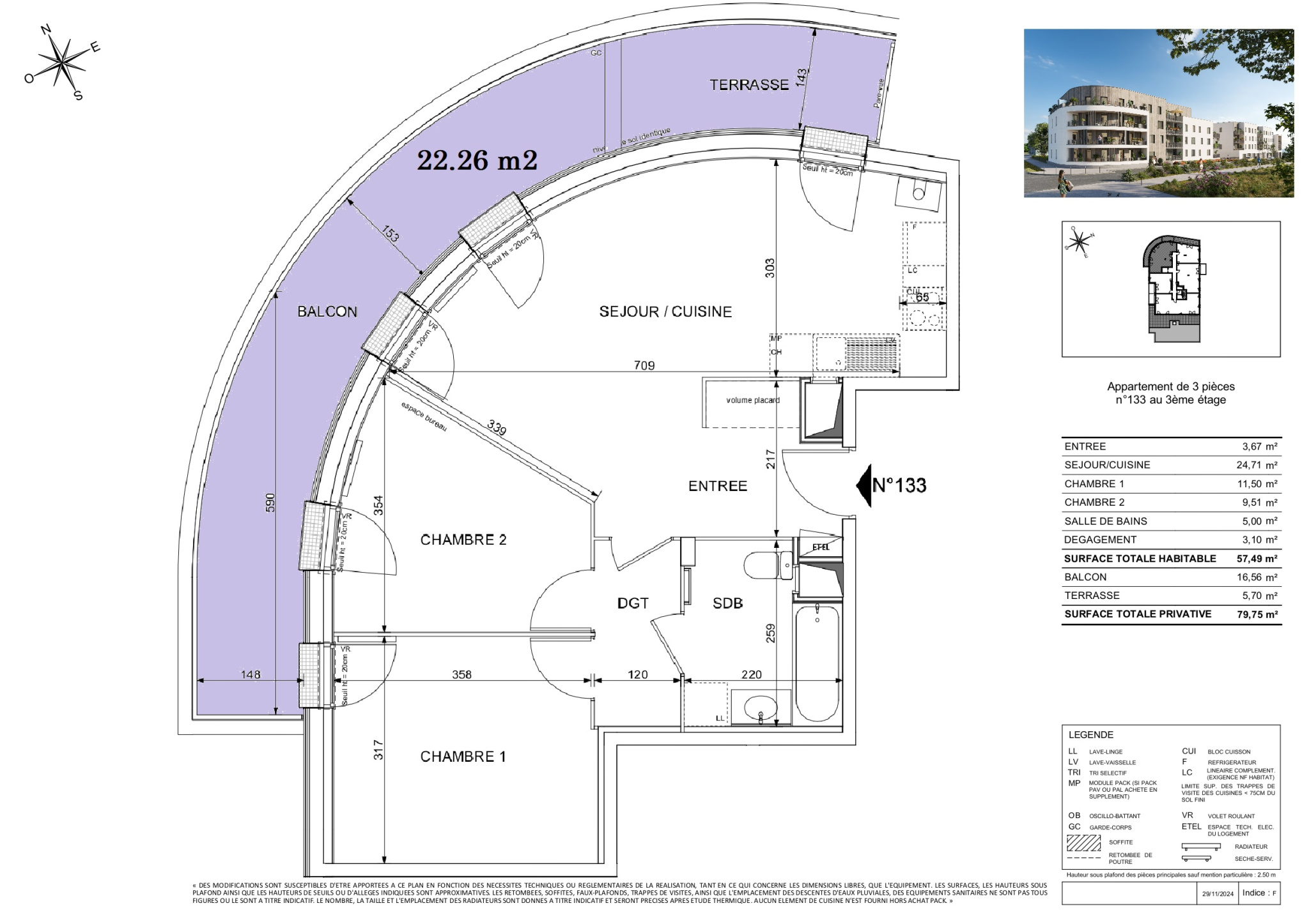
Nuances immobilières vous propose aux portes de Caen, à Colombelles Jean Jaurès, un Appartement de 3pièces de 57m2 au dernier étage avec terrasse de 22m2 !
Il se compose d’une pièce de vie principale de 24m2 ouverte sur la terrasse, de deux chambres (11.50m2 et 9.51m2) et une salle de bain avec toilettes.
2 Parkings en sous sol compris dans le prix.
Dernières normes phoniques et thermiques
Habitable FIN 2026
‘Les informations sur les risques auxquels ce bien est exposé sont disponibles sur le site Géorisques : www.georisques.gouv.fr’.
Offre commerciale en cours limitée dans le temps et sous réserve de disponibilité.
Nuances immobilières vous propose aux portes de Caen, à Colombelles Jean Jaurès, un Appartement de 3pièces de 57m2 au 2ème étage sur 3 avec balcon.
Il se compose d’une pièce de vie principale de 23m2 ouverte sur l’extérieur, de deux chambres (13m2 et 10m2) et une salle de bain avec toilettes.
2 Parkings en sous sol compris dans le prix.
Dernières normes phoniques et thermiques
Habitable FIN 2026
‘Les informations sur les risques auxquels ce bien est exposé sont disponibles sur le site Géorisques : www.georisques.gouv.fr’.
Nuances immobilières vous propose à OUISTREHAM, à 15 minutes à pied de la plage, un appartement de 2Pièces situé au 1er étage avec ascenseur proposant une terrasse de 11m2 et un parking extérieur compris dans le prix. Idéal locatif.
Cet appartement se situe au sein d’une belle résidence composée de 18 appartements.
Idéal pour une résidence secondaire ou une future résidence principale.
DPE:C
Dernières normes phoniques et thermiques.
Habitable immédiatement
‘Les informations sur les risques auxquels ce bien est exposé sont disponibles sur le site Géorisques : www.georisques.gouv.fr’.
Offre commerciale en cours limitée dans le temps et sous réserve de disponibilité.
Nuances immobilières vous propose aux portes de Caen, à Colombelles Jean Jaurès, un Appartement de 3pièces de 58m2 au 2ème étage sur 3 avec balcon.
Il se compose d’une pièce de vie principale de 25m2 ouverte sur l’extérieur, de deux chambres (13m2 et 10m2) et une salle de bain avec toilettes.
2 Parkings en sous sol compris dans le prix.
Dernières normes phoniques et thermiques
Habitable FIN 2026
‘Les informations sur les risques auxquels ce bien est exposé sont disponibles sur le site Géorisques : www.georisques.gouv.fr’.
Nuances immobilières vous propose à Caen à deux pas de la place du Canada, la possibilité d’acquérir un beau 3Pièces de 63m2 avec balcon exposé Soleil du matin au coeur d’un quartier ultra recherché proche des écoles.
Une pièce de vie lumineuse ouvarnt sur un balcon de 8m2 au calme de la rue, 2 chambres (11m2 et 10m2), salle d’eau et wc indépendant.
Etage 3 sur 4.
DPE :C
Une cave et un parking inclus.
Dernières normes phoniques et thermiques.
Disponible immédiatement
‘Les informations sur les risques auxquels ce bien est exposé sont disponibles sur le site Géorisques : www.georisques.gouv.fr’.
Nuances immobilières vous propose à CAEN du coté CHR, un Appartement 3P de 69m2 exposé Sud et Ouest, profitant d’un beau jardin de 63m2.
Ce bien de standing propose une pièce de vie de 27m2 ouvrant sur l’extérieur, puis 2 grandes chambres de 14m2 et 12m2,1 salle d’eau et wc indépendant.
Un Parking compris dans le prix.
Dernières normes phoniques et thermiques
Disponible printemps 2027
Les informations sont disponibles sur le site Géorisques : www.georisques.gouv.fr’.
Haut de gamme en vue.
Nuances immobilières vous propose à OUISTREHAM Bourg , une résidence de grand standing de seulement 2 étages avec ascenseur offrant des prestations de premier plan et des logements volumineux,.
Ici, nous vous présentons un immense 6Pièces duplex de 135m2 Carrez et 180m2 au sol + balcon de 26m2 exposé plein sud, 3 parkings dont 2 au sous sol.
L’appartement se compose d’une pièces de vie de 48m2 ouvert sur le balcon terrasse profond de 26m2,sur ce niveau, 2 chambres de plus de 15m2, et deux salles d’eau.
A l’étage : 2 autres chambres de plus de 20m2 au sol, toilettes, et salle d’eau avec fenetre de toit.
Idéal pour une résidence secondaire ou une future résidence principale.
Dernières normes phoniques et thermiques.
Chauffage par pompe à chaleur.
Personnalisation possible !
Habitable dès 2027
‘Les informations sur les risques auxquels ce bien est exposé sont disponibles sur le site Géorisques : www.georisques.gouv.fr’.
Haut de gamme en vue.
Nuances immobilières vous propose à OUISTREHAM Bourg , une résidence de grand standing de seulement 2 étages avec ascenseur offrant des prestations de premier plan et des logements volumineux,.
Ici, nous vous présentons un immense 6Pièces duplex de 122m2 Carrez et 174m2 au sol + balcon profond de 15m2 exposé plein sud, 3 parkings dont 2 au sous sol.
L’appartement se compose d’une pièces de vie de 40m2 ouvert sur le balcon terrasse profond de 15m2 (3.2m*4.5m),2 chambres ,une salle d’eau avec fenêtre, celier, dressing, et wc indépendant , puis sur le second niveau, 2 chambres de plus de 28m2, une espace rangement de 4m2, et enfin une salle d’eau avec toilettes.
Particularité : la pièce de vie offre une double hauteur sous plafond !
Idéal pour une résidence secondaire ou une future résidence principale.
Dernières normes phoniques et thermiques.
Chauffage par pompe à chaleur.
Personnalisation possible !
Habitable dès 2027
‘Les informations sur les risques auxquels ce bien est exposé sont disponibles sur le site Géorisques : www.georisques.gouv.fr’.
Nuances immobilières vous propose à CAEN du coté CHR, un rare Appartement 5P de 108m2 habitable offrant 2 terrasse et un beau jardin plein Sud.
Ce bien de standing dispose d’une pièce de vie de 43m2 ouvrant sur l’extérieur, puis 3 chambres,2 salles d’eau dont une immense de 8m2 et 2 wc.
2 Parkings compris dans le prix au sous sol.
Exposition Nord et Sud
Dernières normes phoniques et thermiques
Habitable été 2027
Les informations sont disponibles sur le site Géorisques : www.georisques.gouv.fr’.
Nuances immobilières vous propose à CAEN du coté CHR, un rare Appartement traversant 4P de 83m2 habitable offrant 2 terrasses et un beau jardin de 55m2 plein Sud.
Ce bien de standing dispose d’une pièce de vie de 43m2 ouvrant sur l’extérieur, puis 2 chambres dont une de plus de 13m2 avec placard e taccès à la terrasse,puis enfin la salle d’eau .
2 Parkings compris dans le prix au sous sol.
Exposition Nord et Sud
Chauffage urbain (économe en énergie).
Dernières normes phoniques et thermiques
Habitable été 2027
Les informations sont disponibles sur le site Géorisques : www.georisques.gouv.fr’.
Nuances immobilières vous propose à Caen, rue des jardins, un appartement de 4Pièces de 84m2 traversant parfaitement exposé ouvrant sur un jardin de 60m2 et sa terrasse, au sein d’une petite résidence ultra résidentielle.
L’appartement se compose d’une entrée placard, séjour plein sud de 25m2 avec deux grandes baies vitrées, une cuisine séparée aménagée de 10m2, puis 3 chambres dont deux avec grand placard -penderie (9m2, 9m2 et 12m2), et une salle de bains,wc indépendant avec lave mains.
L’appartement est présenté avec 2 caves, un parking extérieur, et un garage au sous sol.
Chauffage électrique individuel avec radiateurs à inertie.
L’environnement immédiat est idéal, au calme, et permet d’accéder à la vallée des jardins à pied.
Les informations sur les risques auxquels ce bien est exposé sont disponibles sur le site Géorisques : www.georisques.gouv.fr’
Nuances immobilières vous propose à Caen Rive Gauche, à deux pas du Zénith de Caen,une nouvelle résidence de 3 étages seulement et en retrait de la rue.
Ici, nous vous présentons un appartement de type 3Pièces de 68m2 situé au dernier étage et exposé Sud et Ouest ouvrant sur le coté intérieur de la résidence au calme.
Un grand séjour salon avec cuisine de 34m2 , puis 2 chambres ( 9m2 et 11m2) et une pièces d’eau,wc indépendant, 2 placards dans l’entrée et le dégagement.
Parking au sous sol compris dans le prix.
Habitable fin 2027.
A deux pas de la future station de tramway.
Dernières normes phoniques et thermiques.
Les informations sur les risques auxquels ce bien est exposé sont disponibles sur le site Géorisques : www.georisques.gouv.fr’.
Nuances immobilières vous propose à Caen Rive Gauche, à deux pas du Zénith de Caen.Une nouvelle résidence de 3 étages seulement et en retrait de la rue.
Ici, nous vous présentons un appartement de type 3Pièces de 71m2 plus terrasse de 12m2 en rez de jardin proposant une exposition Sud -Ouest donnant sur l’intérieur de la résidence au calme.
Un grand séjour salon avec coin cuisine de 35m2, puis 2 chambres ( 10m2 et 13m2) et une pièces d’eau.
Un rare garage privé est compris dans le prix.
Habitable fin 2027.
A deux pas de la future station de tramway.
Dernières normes phoniques et thermiques.
Les informations sur les risques auxquels ce bien est exposé sont disponibles sur le site Géorisques : www.georisques.gouv.fr’.
Nuances immobilières vous propose à Caen Rive Gauche, à deux pas du Zénith de Caen.Une nouvelle résidence de 3 étages seulement et en retrait de la rue.
Ici, nous vous présentons un appartement de type 3Pièces de 63m2 situé au 1er étage avec un garnd balcon et exposé Sud et Ouest donnant sur le coté intérieur de la résidence au calme.
Un grand séjour salon avec cuisine de 27m2 ouvert sur le beau balcon , puis 2 chambres ( 9m2 et 11m2) et une pièces d’eau,wc indépendant, 1 grand placard dans l’entrée .
Un parking intérieur privé est compris dans le prix.
Habitable FIN 2027.
A deux pas de la future station de tramway.
Dernières normes phoniques et thermiques.
Les informations sur les risques auxquels ce bien est exposé sont disponibles sur le site Géorisques : www.georisques.gouv.fr’.
Nuances immobilières vous propose à Caen, quartier CANADA, au sein d’une résidence de haut standing, un rare T3 de 67m2, avec terrasse exposé Sud et Est. Disponible immédiatement.
Usage possible pour une profession libérale !
Il se compose d’une entrée avec placard, une pièce de vie avec cuisine ouverte et donnant accès à la terrasse, 2 chambres dont 1 avec placard, une salle d’eau, un WC.
Il s’agit d’un appartement très fonctionnel et disposant de prestations de qualité (carrelage de grande taille, parquet chêne, pierre sur la façade de l’immeuble, etc…)
Belle visibilté-Vue verdure depuis la cuisine et le séjour, chambres au calme
DPE : C
Il dispose d’une cave et d’un parking.
Faibles consommations énergétiques, faibles charges de copropriété.
Place st sauveur à 5min à pied, tous commerces proches.
Visite possible sur demande
‘Les informations sur les risques auxquels ce bien est exposé sont disponibles sur le site Géorisques : www.georisques.gouv.fr’.
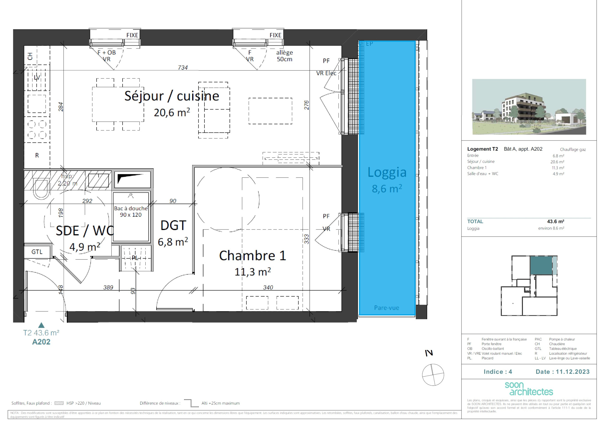
Nuances immobilières vous propose à Caen BEAULIEU, la possibilité d’acquérir un beau 2Pièces de 37m2 avec balcon exposé Est, en étage avec ascenseur, parking inclus.
Une pièce de vie lumineuse de 19m2 ouvrant sur un balcon de 5m2, une chambre de 9m2, salle d’eau et wc .
Chauffage individuel. Vendu avec une cuisine aménagée !
Accès facile en 5 minutes à pieds pour se rendre au SUPER U, boulangerie…
Arrivée tramway prévue pour 2029 à proximité. Accès périphérique facile.
Habitable pour 2028
Résidence de 24 logements.
Dernières normes phoniques et thermiques.
‘Les informations sur les risques auxquels ce bien est exposé sont disponibles sur le site Géorisques : www.georisques.gouv.fr’.
Nuances immobilières vous propose à Caen BEAULIEU, la possibilité d’acquérir un beau studio de 30m2 avec jardin exposé Est.
Une pièce de vie lumineuse de 22m2 ouvrant sur une terrasse de 7m2, salle d’eau et wc .
Chauffage individuel. Vendu avec une cuisine aménagée !
Accès facile en 5 minutes à pieds pour se rendre au SUPER U, boulangerie…
Arrivée tramway prévue pour 2029 à proximité. Accès périphérique facile.
Habitable pour 2028
Résidence de 24 logements.
Dernières normes phoniques et thermiques.
‘Les informations sur les risques auxquels ce bien est exposé sont disponibles sur le site Géorisques : www.georisques.gouv.fr’.
Nuances immobilières vous propose à Caen BEAULIEU, la possibilité d’acquérir un beau grand 2Pièces de 49m2 avec balcon exposé Sud et Ouest, en étage avec ascenseur, parking inclus.
Une pièce de vie lumineuse de 25m2 ouvrant sur un balcon de 5m2 parfaitement exposé, une grande chambre de 12m2, salle d’eau et wc indépendant.
Chauffage individuel. Vendu avec une cuisine aménagée !
Accès facile en 5 minutes à pieds pour se rendre au SUPER U, boulangerie…
Arrivée tramway prévue pour 2029 à proximité. Accès périphérique facile.
Habitable pour 2028
Résidence de 24 logements.
Dernières normes phoniques et thermiques.
‘Les informations sur les risques auxquels ce bien est exposé sont disponibles sur le site Géorisques : www.georisques.gouv.fr’.
Nuances immobilières vous propose à Caen BEAULIEU, la possibilité d’acquérir un beau 3P de 61m2 avec jardin exposé Sud-Ouest, parking inclus.
Une pièce de vie lumineuse de 23m2 ouvrant sur une terrasse de 6m2, 2 chambres, salle d’eau et wc indépendant.
Chauffage individuel. Vendu avec une cuisine aménagée !
Accès facile en 5 minutes à pieds pour se rendre au SUPER U, boulangerie…
Arrivée tramway prévue pour 2029 à proximité. Accès périphérique facile.
Habitable pour 2028
Résidence de 24 logements.
Dernières normes phoniques et thermiques.
‘Les informations sur les risques auxquels ce bien est exposé sont disponibles sur le site Géorisques : www.georisques.gouv.fr’.
Nuances immobilières vous propose à Caen BEAULIEU, la possibilité d’acquérir un beau 3P de 62m2 avec balcon exposé Ouest, en étage avec ascenseur, parking inclus.
Une pièce de vie lumineuse de 27m2 ouvrant sur l’extérieur, 2 chambres, salle d’eau et wc indépendant.
Chauffage individuel. Vendu avec une cuisine aménagée !
Accès facile en 5 minutes à pieds pour se rendre au SUPER U, boulangerie…
Arrivée tramway prévue pour 2029 à proximité. Accès périphérique facile.
Habitable pour 2028
Résidence de 24 logements.
Dernières normes phoniques et thermiques.
‘Les informations sur les risques auxquels ce bien est exposé sont disponibles sur le site Géorisques : www.georisques.gouv.fr’.
Nuances immobilières vous propose à Caen BEAULIEU, la possibilité d’acquérir un beau 3P de 60m2 avec balcon exposé Ouest, en étage avec ascenseur, parking inclus.
Une pièce de vie lumineuse de 26m2 ouvrant sur l’extérieur, 2 chambres, salle d’eau et wc indépendant.
Chauffage individuel. Vendu avec une cuisine aménagée !
Accès facile en 5 minutes à pieds pour se rendre au SUPER U, boulangerie…
Arrivée tramway prévue pour 2029 à proximité. Accès périphérique facile.
Habitable pour 2028
Résidence de 24 logements.
Dernières normes phoniques et thermiques.
‘Les informations sur les risques auxquels ce bien est exposé sont disponibles sur le site Géorisques : www.georisques.gouv.fr’.
Nuances immobilières vous propose à Caen BEAULIEU, la possibilité d’acquérir un beau 4P de 87m2 avec balcon de 8m2 exposé Ouest, au dernier étage avec ascenseur, parking sous-sol et garage fermé inclus.
Une pièce de vie lumineuse de 35m2 (double expo Sud-Ouest) ouvrant sur l’extérieur, 3 chambres, deux salles d’eau dont une privative, un cellier, un placard dans l’entrée et wc indépendant.
Chauffage individuel. Vendu avec une cuisine aménagée !
Accès facile en 5 minutes à pieds pour se rendre au SUPER U, boulangerie…
Arrivée tramway prévue pour 2029 à proximité. Accès périphérique facile.
Habitable pour 2028
Résidence de 24 logements.
Dernières normes phoniques et thermiques.
‘Les informations sur les risques auxquels ce bien est exposé sont disponibles sur le site Géorisques : www.georisques.gouv.fr’.
Emplacement numéro 1 pour de futurs étudiants..
Nuances immobilières vous propose à caen, rue de la délivrande, avec tramway à deux pas de la résidence, une nouvelle résidence dédiée au STATUT du LMP ou LMNP.
Prix de vente exprimé en hors taxes.
Appartement vendu entièrement équipé avec cuisine aménagée.
Espace intégré de coworking,espace détente et petite restauration, laverie, salle de sport…)
Dernières normes phoniques et thermiques.
Chauffage urbain.
Habitable pour été 2028
‘Les informations sur les risques auxquels ce bien est exposé sont disponibles sur le site Géorisques : www.georisques.gouv.fr’.
Nuances immobilières vous propose à Caen BEAULIEU, la possibilité d’acquérir un beau 4P de 80m2 avec jardin de 125m2, parking sous-sol et garage fermé inclus
Une pièce de vie lumineuse de 24m2 ouvrant sur une terrasse de 9m2, 3 chambres, une salle d’eau, un cellier, un placard dans l’entrée et wc indépendant.
Chauffage individuel. Vendu avec une cuisine aménagée !
Accès facile en 5 minutes à pieds pour se rendre au SUPER U, boulangerie…
Arrivée tramway prévue pour 2029 à proximité. Accès périphérique facile.
Habitable pour 2028
Résidence de 24 logements.
Dernières normes phoniques et thermiques.
‘Les informations sur les risques auxquels ce bien est exposé sont disponibles sur le site Géorisques : www.georisques.gouv.fr’.
Emplacement numéro 1 pour de futurs étudiants..
Nuances immobilières vous propose à caen, rue de la délivrande, avec tramway à deux pas de la résidence, une nouvelle résidence dédiée au STATUT du LMP ou LMNP.
Prix de vente exprimé en hors taxes.
Appartement vendu entièrement équipé avec cuisine aménagée.Et un rare parking privé.
Espace intégré de coworking,espace détente et petite restauration, laverie, salle de sport…)
Dernières normes phoniques et thermiques.
Chauffage urbain.
Habitable pour été 2028
‘Les informations sur les risques auxquels ce bien est exposé sont disponibles sur le site Géorisques : www.georisques.gouv.fr’.
Nuances immobilières vous propose à GIBERVILLE, dans un environnement agréable et sécurisé, la possibilité d’acquérir un rare appartement terrasse au dernier étage et traversant.
Celui-ci se compose d’une pièce de vie principale de 27m2 exposée plein Ouest, et offrant deux grandes baies vitrées, une terrasse de 45m2, deux chambres confortable de 12m2, un toilette indépendant, puis une pièce d’eau, et placard de rangement dans l’entrée.
Vendu avec 2 parkings et une cave pour votre confort.
Chauffage individuel !
Dernières normes phoniques et thermiques
‘Les informations sur les risques auxquels ce bien est exposé sont disponibles sur le site Géorisques : www.georisques.gouv.fr’.
Nuances immobilières vous propose à GIBERVILLE, dans un environnement agréable et sécurisé, la possibilité d’acquérir un bel appartement offrant un immense balcon plein sud de 14m2.
Celui-ci se compose d’une pièce de vie principale de 30.50m2 exposée plein Sud, et offrant une belle luminosité de part sa double exposition (Est et Sud), deux chambres , un toilette indépendant, puis une pièce d’eau, et placard de rangement dans l’entrée.
Vendu avec 2 parkings pour votre confort.
Chauffage individuel !
Dernières normes phoniques et thermiques
‘Les informations sur les risques auxquels ce bien est exposé sont disponibles sur le site Géorisques : www.georisques.gouv.fr’.
Nuances immobilières vous propose à GIBERVILLE, dans un environnement agréable et sécurisé, la possibilité d’acquérir un bel appartement offrant un immense balcon plein sud de 14m2.
Celui-ci se compose d’une pièce de vie principale de 30.50m2 exposée plein Sud, et offrant une belle luminosité de part sa double exposition (Est et Sud), deux chambres, un toilette indépendant, un cellier, puis une pièce d’eau, et placard de rangement dans l’entrée.
Vendu avec 2 parkings et une cave pour votre confort.
Chauffage individuel !
Dernières normes phoniques et thermiques
‘Les informations sur les risques auxquels ce bien est exposé sont disponibles sur le site Géorisques : www.georisques.gouv.fr’.
Nuances immobilières vous propose à GIBERVILLE, dans un environnement agréable et sécurisé, la possibilité d’acquérir un bel appartement offrant un immense balcon plein sud de 12m2.
Celui-ci se compose d’une pièce de vie principale de 28m2 exposée plein Sud, et offrant une belle luminosité de part sa double exposition (Sud et Ouest), deux chambres, un toilette indépendant, un cellier, puis une pièce d’eau, et placard de rangement dans l’entrée.
Vendu avec 2 parkings pour votre confort.
Chauffage individuel !
Dernières normes phoniques et thermiques
‘Les informations sur les risques auxquels ce bien est exposé sont disponibles sur le site Géorisques : www.georisques.gouv.fr’.
Nuances immobilières vous propose à GIBERVILLE, dans un environnement agréable et sécurisé, la possibilité d’acquérir un rare appartement terrasse au dernier étage et traversant.
Celui-ci se compose d’une pièce de vie principale de 35m2 exposée Sud-Ouest, et offrant une grande baie vitrée et deux fenêtres, deux terrasses (50m2 expo Ouest et 13m2 expo Est), trois chambres confortable de 15m2-11m2-11m2, un toilette indépendant, deux pièces d’eau dont 1 privative, cellier et placard de rangement dans l’entrée.
Vendu avec 2 parkings et une cave pour votre confort.
Chauffage individuel !
Dernières normes phoniques et thermiques
‘Les informations sur les risques auxquels ce bien est exposé sont disponibles sur le site Géorisques : www.georisques.gouv.fr’.
Nuances immobilières vous propose à GIBERVILLE, dans un environnement agréable et sécurisé, la possibilité d’acquérir un beau 2Pièces en étage supérieur avec balcon .
Celui-ci se compose d’une pièce de vie principale de 22m2 exposée soleil du matin, et offrant une belle luminosité de part ses 3 ouvertures dans la pièce de vie, une chambre de 11.50m2, une grande pièce d’eau avec toilette, et placard de rangement dans l’entrée.
Vendu avec 1 parking privé.
Chauffage individuel !
Dernières normes phoniques et thermiques
‘Les informations sur les risques auxquels ce bien est exposé sont disponibles sur le site Géorisques : www.georisques.gouv.fr’.
Nuances immobilières vous propose à GIBERVILLE, dans un environnement agréable et sécurisé, la possibilité d’acquérir un beau 2Pièces en étage supérieur avec balcon .
Celui-ci se compose d’une pièce de vie principale de 21m2 exposée soleil du matin, et offrant une belle luminosité de part ses 3 ouvertures dans la pièce de vie, une chambre de 11.50m2, une grande pièce d’eau avec toilette, et placard de rangement dans l’entrée.
Vendu avec 1 parking privé.
Chauffage individuel !
Dernières normes phoniques et thermiques
‘Les informations sur les risques auxquels ce bien est exposé sont disponibles sur le site Géorisques : www.georisques.gouv.fr’.
Nuances immobilières vous propose à OUISTREHAM, à 15 minutes à pied de la plage, un appartement de 2Pièces situé au 2em étage proposant un beau balcon de 8m2, une cave, un parking au sous sol et un parking extérieur compris dans le prix. Idéal locatif.
Cet appartement se situe au sein d’une belle résidence composée de 18 appartements seulement et ascenseur.
Idéal pour une résidence secondaire ou une future résidence principale.
DPE : C
Dernières normes phoniques et thermiques.
Habitable immédiatement
‘Les informations sur les risques auxquels ce bien est exposé sont disponibles sur le site Géorisques : www.georisques.gouv.fr’.
Nuances immobilières vous propose sur les hauteurs de Louvigny, un emplacement rare pour habiter proche de Caen et bénéficier d’accès rapide au périphérique et au centre ville.
Un appartement, 2Pièces de 38m2 au dernier étage de la résidencede ,ouvert sur son balcon plein sud, coté jardin au calme.
Il se compose d’une entrée avec placard, d’une pièce de vie principale de 17.40m2 avec cuisine ouverte, puis une chambre de 11.55m2, d’une salle d’eau et d’un wc .
Parking inclus.
Commerces et transports en communs accessibles en 3 minutes.
Les informations sur les risques auxquels ce bien est exposé sont disponibles sur le site Géorisques : www.georisques.gouv.fr’.
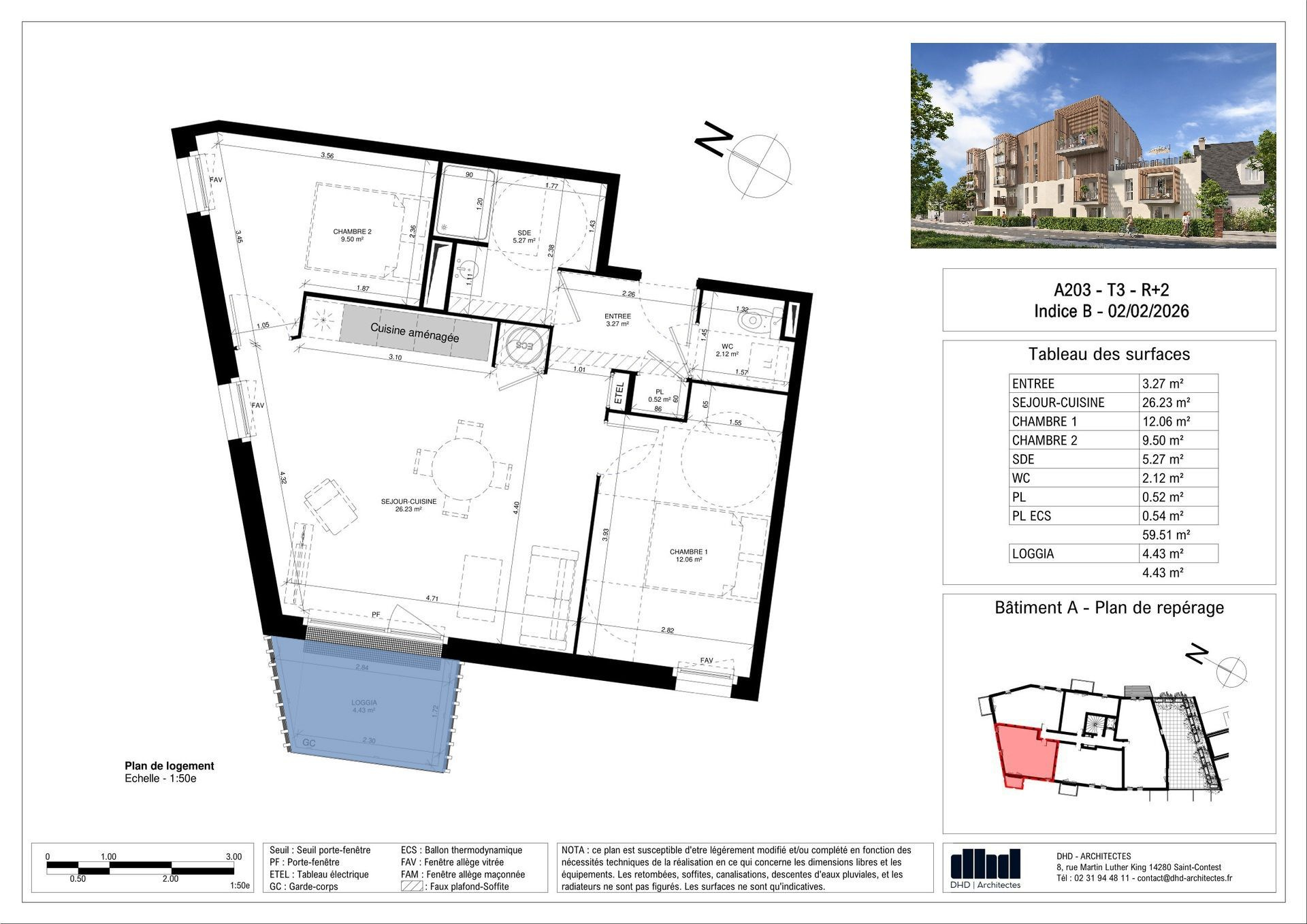
Nuances Immobilières vous propose à Caen, quartier Campus 1 avec accès facile au tramway, sur le haut de la rue de la délivrande dans une petite rue au calme, un appartement de type 2Pièces avec balcon expo plein Sud.
Ce bien situé au 1er étage sur 3, desservi par ascenseur, propose, une entrée, une pièce de vie de 23m2 ouverte sur l’extérieur, une chambre et une salle d’eau avec wc.
Une cuisine aménagée équipée (évier, plaque de cuisson, hotte, plan de travail, meuble bas et meuble haut) comprise dans le prix.
Les atouts : Tramway accessible à pied, bus.
Habitable 2027.
Parking inclus.
‘Les informations sur les risques auxquels ce bien est exposé sont disponibles sur le site Géorisques : www.georisques.gouv.fr’.
Offre commerciale en cours !
Nuances immobilières vous propose à Caen rive gauche, une résidence de standing à deux pas de l’hotel de police et du Leclerc LANFRANC.
Ici, nous vous présentons un appartement de 3 Pièces d’une surface habitable de 61m2 exposé Plein sud au calme et offrant un beau balcon en étage supérieur !
Il se compose d’une pièce de vie de 28m2, de deux chambres de 10m2 et 14m2, d’une salle d’eau et d’un toilettes.
Belles prestations…
Parking sous-sol compris dans le prix.
Habitable dans 18 mois.
‘Les informations sur les risques auxquels ce bien est exposé sont disponibles sur le site Géorisques : www.georisques.gouv.fr’.
Nuances immobilières vous propose à SAINT AUBIN SUR MER à moins de 10 minutes à pied de la plage, un appartement de 2Pièces de 44m2 au 1er étage avec ascenseur, disposant d’un balcon exposé à l’est et au sud, et un parking extérieur.
Cet appartement se situe au sein d’un bel ensemble résidentiel .composé de 4 petits immeubles de 2 étages et et quelques maisons.
Idéal pour une résidence secondaire, ou une future résidence principale.
Dernières normes phoniques et thermiques.
Habitable en 2027.
‘Les informations sur les risques auxquels ce bien est exposé sont disponibles sur le site Géorisques : www.georisques.gouv.fr’.
Nuances immobilières vous propose à SAINT AUBIN SUR MER à moins de 10 minutes à pied de la plage, un appartement de 3Pièces de 63m2 avec terrasse et jardin de plus de 100m2, une exposition à l’Est et au Sud, vendu avec 2 parkings extérieurs et une cave..
Cet appartement se situe au sein d’un bel ensemble résidentiel .composé de 4 petits immeubles de 2 étages et et quelques maisons.
Idéal pour une résidence secondaire, ou une future résidence principale.
Dernières normes phoniques et thermiques.
Habitable en 2027.
‘Les informations sur les risques auxquels ce bien est exposé sont disponibles sur le site Géorisques : www.georisques.gouv.fr’.
Nuances immobilières vous propose à SAINT AUBIN SUR MER à moins de 10 minutes à pied de la plage, un appartement de 4Pièces de 94m2 avec terrasse et jardin de plus de 140m2, une exposition Sud et Ouest, vendu avec 2 parkings extérieurs et une cave..
Cet appartement se situe au sein d’un bel ensemble résidentiel .composé de 4 petits immeubles de 2 étages et et quelques maisons.
Idéal pour une résidence secondaire, ou une future résidence principale.
Dernières normes phoniques et thermiques.
Habitable en 2027.
‘Les informations sur les risques auxquels ce bien est exposé sont disponibles sur le site Géorisques : www.georisques.gouv.fr’.
Offre commerciale en cours !
Nuances immobilières vous propose à Caen rive gauche, une résidence de standing à deux pas de l’hotel de police et du Leclerc LANFRANC.
Ici, nous vous présentons un appartement de 4 Pièces d’une surface habitable de 81m2 exposé Plein sud au calme et offrant une terrasse de 16m2 au premier étage avec ascenseur !
Il se compose d’une pièce de vie de 26m2, de 3 chambres de 10m2-11m2 et 12m2, deux salle d’eau, et 2 toilettes.
Belles prestations…
Parking sous-sol compris dans le prix.
Habitable dans 18 mois.
‘Les informations sur les risques auxquels ce bien est exposé sont disponibles sur le site Géorisques : www.georisques.gouv.fr’.
Nuances immobilières vous propose à la limite de Caen, à Mondeville, rue Pasteur, une résidence de nouvelle génération garantissant des économies d’énergie.
Nous vous présentons ici cet appartement 4Pièces avec au 3ème étage ascenseur de 91 m2 + une superbe terrasse de 48m2.
3 Chambres, une salle de bains avec wc, et un autre wc indépendant.
Parking double compris dans le prix.
Habitable début 2027
‘Les informations sur les risques auxquels ce bien est exposé sont disponibles sur le site Géorisques : www.georisques.gouv.fr’.
Nuances immobilières vous propose à la limite de Caen, à Mondeville, rue Pasteur, une résidence de nouvelle génération garantissant des économies d’énergie.
Nous vous présentons ici cet appartement 4Pièces au 2ème étage avec ascenseur de 89 m2 + une terrasse de 18m2 exposée Sud.
3 Chambres, une salle de bains avec wc, et un autre wc indépendant.
Parking double compris dans le prix.
Habitable début 2027.
‘Les informations sur les risques auxquels ce bien est exposé sont disponibles sur le site Géorisques : www.georisques.gouv.fr’.
Nuances immobilières vous propose à Caen Rive Gauche, à deux pas du Zénith de Caen,une nouvelle résidence de 3 étages seulement et en retrait de la rue.
Ici, nous vous présentons un appartement de type 2 Pièces de 30.50m2 au deuxième étage .
Une pièce de vie principale de 16m2, une chambre de 8.5m2, puis la salle d’eau et wc.
Un parking est compris dans le prix.
Proche du centre ville, à deux pas de l’arrêt bus et de la future ligne de tramway.
Habitable été 2027.
Dernières normes phoniques et thermiques.
Bien idéal pour un investisseur avisé.
Les informations sur les risques auxquels ce bien est exposé sont disponibles sur le site Géorisques : www.georisques.gouv.fr’.
Nuances immobilières vous propose un appartement 4Pièces d’exception offrant une belle terrasse tout autour de l’appartement !
Accès au centre de Caen facile par le bus, le tramway, ou la route d’harcourt ( entre 5 et 10 minutes).
Cet appartement se distingue par ses vues trés agréables aux portes de Caen et sa terrasse de 80m2.
Desservie par le tramway, et situé au dernier étage, il se compose d’une entrée avec placard, puis la pièce de vie principale de 31m2 avec cuisine ouverte sur l’immense terrasse, 3 chambres, une belle pièce d’eau, 2 stationnements en sous sol et un cellier accessible depuis la terrasse.
Appartement aux dernières normes thermiques et phoniques.
Chauffage de type Urbain avec décompteur.
DPE :A
Résidence sécurisée-Hall d’entrée rafinné-Vidéophone.
Particularité : Une exposition triple offrant de L’est, du sud et le soleil couchant…
Visite possible
Les informations sur les risques auxquels ce bien est exposé sont disponibles sur le site Géorisques : www.georisques.gouv.fr’
Travaux en cours !!!
+ de 50% de la résidence vendue…
Nuances immobilières vous propose à Caen-centre, coté canal, avec le marché du dimanche à quelques minutes à pieds, une nouvelle résidence proposant de très beaux logements avec vue sur le canal.
Ici, nous vous proposons un appartement 4Pièces de 85m2 au 2em étage de la résidence diposant d’un balcon-terrasse de 20m2 exposé Sud et Ouest.
Ce bien disposera de 3 chambres, d’une pièce de vie de 33m2, d’une pièce d’eau, d’un bel extérieur avec vues, et garage double en sous sol.
Particularité: un grand balcon profond en angle et des vues sur le canal et le parc.
Dernières normes phoniques et thermiques.
Habitable dans 12 mois
‘Les informations sur les risques auxquels ce bien est exposé sont disponibles sur le site Géorisques : www.georisques.gouv.fr’.
Nuances Immobilières vous propose à Caen, quartier la haie-vigné, la possibilité de vous offrir un appartement de type 3P au 1er étage avec ascenseur et un superbe balcon de 12m2 au calme de la rue.
Ce bien propose une pièce de vie de 25m2 ouverte sur un bel extérieur profond, puis deux chambres (12m2 et 10m2), une salle d’eau, et toilettes indépendantes.
Cet appartement propose un stationnement en sous sol compris dans le prix.
Futur Tramway, bus et accès commerces à moins de 5 minutes.
Habitable 2027.
‘Les informations sur les risques auxquels ce bien est exposé sont disponibles sur le site Géorisques : www.georisques.gouv.fr’.
Nuances Immobilières vous propose à Caen, quartier la haie-vignée, la possibilité de vous offrir un appartement de type 3P au 4em étage avec ascenseur et un superbe balcon de 9m2 avec vue lointaine.
Ce bien propose une pièce de vie de 24m2 ouverte sur un bel extérieur profond, puis deux chambres (12m2 et 11m2) donnant coté promende Napoleon., une salle d’eau, et toilettes indépendantes.
Cet appartement propose un stationnement en sous sol compris dans le prix.
Futur Tramway, bus et accès commerces à moins de 5 minutes.
Habitable 2027.
‘Les informations sur les risques auxquels ce bien est exposé sont disponibles sur le site Géorisques : www.georisques.gouv.fr’.
Nuances Immobilières vous propose à Caen, quartier la haie-vigné, la possibilité de vous offrir un très beau 3P au 4em étage avec ascenseur et un immense balcon de 17m2 donnant au dessus de la promenade Napoleon.
Ce bien propose une pièce de vie de 30m2 ouverte sur ce bel extérieur profond, puis deux chambres de plus de 11m2, une salle d’eau, et toilettes indépendantes.
Proche de l’entrée, vous trouverez un espace rangement avec arrivée machine à laver ,et chaudière.
Cet appartement propose un stationnement en sous sol compris dans le prix.
Futur Tramway, bus et accès commerces à moins de 5 minutes.
Habitable 2027.
‘Les informations sur les risques auxquels ce bien est exposé sont disponibles sur le site Géorisques : www.georisques.gouv.fr’.
Nuances Immobilières vous propose à Caen, quartier la haie-vigné, la possibilité de vous offrir un beau 2P de 40m2 au 1er étage avec ascenseur et un balcon de 6m2.
Ce bien propose une pièce de vie de 19m2 ouverte sur l’extérieur, et d’une chambre de plus de 11m2, une salle d’eau avec toilette.
Parking inclus
Futur Tramway, bus et accès commerces à moins de 5 minutes.
Habitable 2027.
‘Les informations sur les risques auxquels ce bien est exposé sont disponibles sur le site Géorisques : www.georisques.gouv.fr’.
Nuances immobilières vous propose sur les hauteurs de Louvigny, un emplacement rare pour habiter proche de Caen et bénéficier d’accès rapide au périphérique et au centre ville.
Un appartement, 2Pièces de 39m2 ouvert sur un balcon plein sud, coté jardin au calme.
Il se compose d’une entrée avec placard, d’une pièce de vie principale de 17m2 avec cuisine ouverte, puis une chambre de 11.50m2, d’une salle d’eau avec wc.
Parking inclus.
Ascenseur.
Commerces et transports en communs accessibles en 3 minutes.
Les informations sur les risques auxquels ce bien est exposé sont disponibles sur le site Géorisques : www.georisques.gouv.fr’.
Nuances immobilières vous propose sur les hauteurs de Louvigny, un emplacement rare pour habiter proche de Caen et bénéficier d’accès rapide au périphérique et au centre ville.
Un appartement, 3Pièces de 66m2 ouvert sur un balcon plein sud, coté jardin au calme.
Il se compose d’une entrée avec placard, d’une pièce de vie principale de 30m2 avec cuisine ouverte, puis deux chambres de 11m2 et 10m2, d’une salle d’eau et d’un wc indépendant.
Parking double inclus.
Ascenseur.
Commerces et transports en communs accessibles en 3 minutes.
Les informations sur les risques auxquels ce bien est exposé sont disponibles sur le site Géorisques : www.georisques.gouv.fr’.
Nuances immobilières vous propose sur les hauteurs de Louvigny, un emplacement rare pour habiter proche de Caen et bénéficier d’accès rapide au périphérique et au centre ville.
Un appartement au dernier étage, 3Pièces de 61m2 ouvert sur un balcon plein sud, coté jardin au calme.
Il se compose d’une entrée avec placard, d’une pièce de vie principale de 30m2 avec cuisine ouverte, puis deux chambres de 11m2 et 9.80m2, d’une salle d’eau et d’un wc indépendant.
Parking double inclus.
Ascenseur.
Commerces et transports en communs accessibles en 3 minutes.
Les informations sur les risques auxquels ce bien est exposé sont disponibles sur le site Géorisques : www.georisques.gouv.fr’.
Nuances Immobilières vous propose à Caen, quartier la haie-vigné, la possibilité de vous offrir un beau 2P de 40m2 au dernier étage avec ascenseur et un balcon de 6m2.
Ce bien propose un plan parfait, avec une pièce de vie de 19m2 ouverte sur l’extérieur, et d’une chambre de plus de 11m2, une salle d’eau avec toilette dans l’entrée.
Vendu avec un parking au sous sol.
Futur Tramway, bus et accès commerces à moins de 5 minutes.
Habitable 2027.
‘Les informations sur les risques auxquels ce bien est exposé sont disponibles sur le site Géorisques : www.georisques.gouv.fr’.
Nuances immobilières vous propose un rare emplacement à hérouville saint clair Bourg idéal pour habiter proche de Caen et bénéficier d’accès rapide au périphérique et au centre ville.
Un appartement, 3Pièces de 58m2 ouvert sur un balcon plein sud, desservie par ascenseur, vendu avec parking au sous sol.
Il se compose d’une entrée menant à la pièce de vie principale de 24m2 avec cuisine ouverte, puis deux chambres dont une grande de plus de 14m2, d’une salle d’eau et d’un wc proche de l’entrée.
Transports en communs accessibles en 2 minutes.
Les informations sur les risques auxquels ce bien est exposé sont disponibles sur le site Géorisques : www.georisques.gouv.fr’.
Nuances immobilières vous propose un rare emplacement à hérouville saint clair Bourg idéal pour habiter proche de Caen et bénéficier d’accès rapide au périphérique et au centre ville.
Un appartement, 4Pièces de 73m2 ouvert sur un balcon plein sud-ouest, desservie par ascenseur, vendu avec 2 parkings au sous sol.
Il se compose d’une entrée avec placard menant à la pièce de vie principale de 25m2 , un espace avec cuisine séparé, puis trois chambres (10m2,9m212m2) , d’une salle d’eau et d’un wc indépendant proche de l’entrée.
Transports en communs accessibles en 2 minutes.
Les informations sur les risques auxquels ce bien est exposé sont disponibles sur le site Géorisques : www.georisques.gouv.fr’.
Nuances immobilières vous propose à SAINT AUBIN SUR MER à moins de 10 minutes à pied de la plage, un appartement de 2Pièces de 42m2 au 2ème et dernier étage avec ascenseur, disposant d’un balcon exposé à l’est une cave, un parking extérieur.
Cet appartement se situe au sein d’un bel ensemble résidentiel .composé de 4 petits immeubles de 2 étages et et quelques maisons.
Idéal pour une résidence secondaire, ou une future résidence principale.
Dernières normes phoniques et thermiques.
Habitable en 2027.
‘Les informations sur les risques auxquels ce bien est exposé sont disponibles sur le site Géorisques : www.georisques.gouv.fr’.
Nuances immobilières vous propose à la limite de Caen, à Mondeville, rue Pasteur, une résidence de nouvelle génération garantissant des économies d’énergie.
Nous vous présentons ici cet appartement 4Pièces au quatrième étage en attique de 84 m2 + une superbe terrasse de 81m2 exposé Sud.
3 Chambre dont 2 avec accès terrasse, une pièces d’eau aveec wc, et un autre wc indépendant.
Parking double compris dans le prix.
Habitable début 2027
‘Les informations sur les risques auxquels ce bien est exposé sont disponibles sur le site Géorisques : www.georisques.gouv.fr’.
Nuances immobilières vous propose à la limite de Caen, à Mondeville, rue Pasteur, une résidence de nouvelle génération garantissant des économies d’énergie.
Nous vous présentons ici cet appartement 6Pièces au troisème étage en attique de 101 m2 + une terrasse de 42m2 exposée Sud.
4 Chambres dont 3 avec accès terrasse, deux pièces d’eau dont une avec wc, et un autre wc indépendant.
Parking double compris dans le prix.
Habitable début 2027
‘Les informations sur les risques auxquels ce bien est exposé sont disponibles sur le site Géorisques : www.georisques.gouv.fr’.
Nuances immobilières vous propose à la limite de Caen, à Mondeville, rue Pasteur, une résidence de nouvelle génération garantissant des économies d’énergie.
Nous vous présentons ici cet appartement 4Pièces au dernier étage de 91 m2 + un balcon de 17m2 en angle exposé Sud.
3 Chambres, une salle de bains avec wc, et un autre wc indépendant.
Parking double compris dans le prix.
Habitable début 2027.
‘Les informations sur les risques auxquels ce bien est exposé sont disponibles sur le site Géorisques : www.georisques.gouv.fr’.
Nuances immobilières vous propose à la limite de Caen, à Mondeville, rue Pasteur, une résidence de nouvelle génération garantissant des économies d’énergie.
Nous vous présentons ici cet appartement 3Pièces au 3ème étage sur 5, avec ascenseur, de 68 m2 + une terrasse de 36m2.
2 Chambres, une salle d’eau, et un wc indépendant.
Parking extérieur compris dans le prix.
Habitable fin 2026.
‘Les informations sur les risques auxquels ce bien est exposé sont disponibles sur le site Géorisques : www.georisques.gouv.fr’.
Nuances immobilières vous propose à Ifs, à 7 minutes à pied des commerces, proche Mairie.
Un grand appartement de 2Pièces de 52m2 exposé plein Sud au deuxième étage sur 3.
Entrée, une pièce de vie principale de 33m2 avec cuisine ouverte sur le balcon, une chambre de 12m2 puis une salle d’eau avec wc dans l’entrée.
1 Parking en sous sol et 1 parking extérieur inclus pour votre confort.
Commerces et transports en communs accessibles à pieds.
Habitable sous 12 mois.
Les informations sur les risques auxquels ce bien est exposé sont disponibles sur le site Géorisques : www.georisques.gouv.fr’.
Nuances immobilières vous propose à Ifs, à 7 minutes à pied des commerces, proche Mairie.
Un appartement, 4Pièces de 95m2 avec un grand jardin de 216m2 bénéficiant d’une triple exposition (SUD-OUEST-NORD).
Entrée, une pièce de vie principale de 51m2 avec cuisine ouverte sur la terrasse de 17m2, 3 chambres (13 m2 /10m2 /13 m2), une salle d’eau et un wc indépendant.
Double Parking en sous sol inclus.
Étage 1 sur 3.
Habitable sous 12 mois
Commerces et transports en communs accessibles à pieds.
Les informations sur les risques auxquels ce bien est exposé sont disponibles sur le site Géorisques : www.georisques.gouv.fr’.
Nuances immobilières vous propose à Caen-centre, face à la presqu’île, une nouvelle résidence proposant de très beaux logements avec vue sur le canal.
Ici, nous vous proposons un appartement 3 Pièces de 68m2 au deuxième étage de la résidence diposant d’un grand balcon de 12m2 exposé OUEST.
Ce bien se compose d’une entrée, une pièce de vie exposé OUEST, 2 chambres avec placards, un cellier, une salle d’eau et un WC séparé. Il est également vendu avec un garage fermé.
Particularité: Une exposition Ouest avec vue sur un parc et le canal.
Dernières normes phoniques et thermiques.
Habitable fin 2026
‘Les informations sur les risques auxquels ce bien est exposé sont disponibles sur le site Géorisques : www.georisques.gouv.fr’.
Nuances immobilières vous propose à Caen-centre, coté canal, avec le marché du dimanche à quelques minutes à pieds.
Ici, nous vous proposons un appartement 3Pièces de 69m2 en étage supérieur offrant un balcon profond de plus de 10m2.
Ce bien disposera de 2 chambres, d’une pièce de vie de 28m2, une pièce d’eau, un cellier.
Vendu avec 2 garages
Particularité: vue sur un parc
Dernières normes phoniques et thermiques.
Habitable fin 2026
‘Les informations sur les risques auxquels ce bien est exposé sont disponibles sur le site Géorisques : www.georisques.gouv.fr’.
NUANCES IMMOBILIERES vous propose dans le centre de Douvres la délivrande face à la mairie, un appartement de 3Pièces avec terrasse de 8m2 exposée Ouest.
Au sein de cet ensemble immobilier avec quelques commerces en pied d’immeuble, nous avons sélectionné cet appartement de 3Pièces d’une surface habitable de 66m2 ouvert sur sa terrasse .
Un bien confortable offrant une pièce de vie de 30m2 ouverte sur l’extérieur, à l’entrée palcard puis, coté nuit, deux chambres exposé soleiml du matin au calme ,une pièce d’eau, et wc indépendant dans l’entrée.
Au sous sol : 1 place de parking
Dernières normes phonique et thermique.
Habitable début 2027.
‘Les informations sur les risques auxquels ce bien est exposé sont disponibles sur le site Géorisques : www.georisques.gouv.fr’
Nuances Immobilières vous propose à Caen, quartier Campus 1 avec accès facile au tramway, sur le haut de la rue de la délivrande dans une petite rue au calme, la possibilité de vous offrir un appartement de type 2P avec un balcon immense de 19m2 exposé Sud et Ouest.
Ce bien situé au 2ème étage de la résidence, desservie par ascenseur, propose une pièce de vie de 18m2 ouverte sur le superbe extérieur, puis une chambre (12m2), une salle d’eau avec toilettes dans l’entrée.
Les atouts : Petite résidence au pied de la faculté et du tramway !
Prix parking inclus.
Habitable 2027.
‘Les informations sur les risques auxquels ce bien est exposé sont disponibles sur le site Géorisques : www.georisques.gouv.fr’.
Nuances Immobilières vous propose à Caen, quartier Campus 1 avec accès facile au tramway, sur le haut de la rue de la délivrande dans une petite rue au calme, la possibilité de vous offrir un appartement de type 2P avec balcon de 5m2 exposé Sud et Ouest.
Ce bien situé au 2ème étage de la résidence, desservie par ascenseur, propose une pièce de vie de 23m2 ouverte sur un extérieur, puis une chambre (11m2), une salle d’eau avec toilettes.
Les atouts : Petite résidence au pied de la faculté et du tramway !
Prix parking inclus.
Habitable 2027.
‘Les informations sur les risques auxquels ce bien est exposé sont disponibles sur le site Géorisques : www.georisques.gouv.fr’.
Compromis de vente en cours.
Nuances immobilières vous a présenté à Caen face à l’hippodrome ,un bel appartement de standing de 3pièces traversant pour une surface habitable de 78.50m2 en étage avec balcon de 7m2 bien exposé, en complement un parking privé au sous sol de la résidence.Construction de 2020.
Cet appartement se composait de la façon suivante :
Une entrée confortable avec placard donnant accès à la pièce de vie principale ouverte sur le balcon et la vue sur l’hippodrome.Une cuisine aménagée et équipée de belle facture, et juste à coté un espace cellier trés utile offrant de nombreux rangements et judicieusement aménnagé..A coté du séjour, une chambre accessible depuis une porte à galandage offrant une vue sur l’hippodrome.
Depuis l’entrée, nous accedons au coin nuit par un couloir desservant un toilette séparé avec lave mains, une salle d’eau haut de gamme, et la chambre principale avec grand placard ,exposée soleil du matin et offrant de belles vues sur d’anciens hotels particuliers.
Ce bien était vendu avec un parking privé au sous sol avec borne électrique , et accessible depuis l’ascenseur de la résidence.
Particularité : Un appartement bénéficiant d’un plan parfaitement pensé par les propriétaires actuels.Des vues trés agréables.Des préstations numéro 1.Appartement Conforme à la norme PMR.
DPE :C
Dernières normes phoniques et thermiques.
Un appartement idéal pour habiter confortablement le centre de Caen avec la prairie, le théatre,’hippodrome, la piscine,et les commerces accessibles à pied.
Emplacement et prestations rares.
‘Les informations sur les risques auxquels ce bien est exposé sont disponibles sur le site Géorisques : www.georisques.gouv.fr’
Nuances Immobilières vous propose à Caen, quartier la haie-vignée, un studio.
Ce bien situé au RDC de la résidence, propose une pièce principal de 23m2 et une salle d’eau avec WC.
Cuisine aménagée équipée (évier, plaque de cuisson, hotte, plan de travail, meuble bas et meuble haut) comprise dans le prix.
Futur Tramway, bus et accès commerces à moins de 5 minutes.
Habitable 2027.
Opportunité investisseur
‘Les informations sur les risques auxquels ce bien est exposé sont disponibles sur le site Géorisques : www.georisques.gouv.fr’.
Nuances Immobilières vous propose à Caen, quartier la haie-vigné, la possibilité de vous offrir un beau 2P de 40m2 au 2ème étage avec ascenseur et un balcon de 6m2.
Ce bien propose un plan parfait, avec une pièce de vie de 19m2 ouverte sur l’extérieur, et d’une chambre de plus de 11m2 également ouverte sur l’extérieur, une salle d’eau avec toilette dans l’entrée.
Vendu avec un parking au sous sol.
Futur Tramway, bus et accès commerces à moins de 5 minutes.
Habitable 2027.
‘Les informations sur les risques auxquels ce bien est exposé sont disponibles sur le site Géorisques : www.georisques.gouv.fr’.
Nuances Immobilières vous propose à Caen, quartier Campus 1 avec accès facile au tramway, sur le haut de la rue de la délivrande dans une petite rue au calme, la possibilité de vous offrir un appartement de type 2P avec balcon de 3m2 exposé Sud et Ouest.
Ce bien situé au 2ème étage de la résidence, desservie par ascenseur, propose une pièce de vie de 23m2 ouverte sur un extérieur, puis une chambre (11m2), une salle d’eau avec toilettes.
Les atouts : Petite résidence au pied de la faculté et du tramway !
Prix parking inclus.
Habitable 2027.
‘Les informations sur les risques auxquels ce bien est exposé sont disponibles sur le site Géorisques : www.georisques.gouv.fr’.
Nuances immobilières vous propose à Caen Rive Gauche, à deux pas du Zénith de Caen,une nouvelle résidence de 3 étages seulement et en retrait de la rue.
Ici, nous vous présentons un appartement de type Studio de 25m2 au deuxième étage .
Une pièce de vie principale de 17m2, puis la salle d’eau et wc.
Proche du centre ville, à deux pas de l’arrêt bus et de la future ligne de tramway.
Habitable été 2027.
Dernières normes phoniques et thermiques.
Bien idéal pour un investisseur avisé.
Les informations sur les risques auxquels ce bien est exposé sont disponibles sur le site Géorisques : www.georisques.gouv.fr’.
Nuances immobilières vous propose à Caen Rive Gauche, à deux pas du Zénith de Caen,une nouvelle résidence de 3 étages seulement et en retrait de la rue.
Ici, nous vous présentons un appartement de type Studio de 25m2 au 1er étage .
Une pièce de vie principale de 17m2, puis la salle d’eau et wc.
Proche du centre ville, à deux pas de l’arrêt bus et de la future ligne de tramway.
Habitable été 2027.
Dernières normes phoniques et thermiques.
Bien idéal pour un investisseur avisé.
Les informations sur les risques auxquels ce bien est exposé sont disponibles sur le site Géorisques : www.georisques.gouv.fr’.
Nuances immobilières vous propose à SAINT AUBIN SUR MER à moins de 10 minutes à pied de la plage, un grand 3Pièces de 69m2 au 2em étage sur 2 avec ascenseur, disposant d’un balcon exposé à l’Ouest, une cave, 2 parkings extérieurs.
Cet appartement se situe au sein d’un bel ensemble résidentiel .composé de 4 petits immeubles de 2 étages et et quelques maisons.
Particularité :Une grande pièce de vie de 31m2 offrant une exposition est et Sud, avec fenetre coté cuisine.
2Parkings et une cave compris dans le prix.
Idéal pour une résidence secondaire, ou une future résidence principale.
Dernières normes phoniques et thermiques.
Habitable en 2027.
‘Les informations sur les risques auxquels ce bien est exposé sont disponibles sur le site Géorisques : www.georisques.gouv.fr’.
Nuances immobilières vous propose à SAINT AUBIN SUR MER à moins de 10 minutes à pied de la plage, un grand 4/5Pièces de 108m2 avec jardin exposé Sud et est.
Ce bien est vendu avec 1 cave et 2 parkings extérieurs.
Cet appartement se situe au sein d’un bel ensemble résidentiel composé de 4 petits immeubles de 2 étages et et quelques maisons.
Particularité :Une grande pièce de vie de 44m2 ouvrant sur un grand jardin clos de 144m2, et un espace cuisine avec fenêtre , 3 chambres, et 2 pièces d’eau.
Idéal pour une résidence secondaire, ou une future résidence principale.
Dernières normes phoniques et thermiques.
Habitable dès 2027.
‘Les informations sur les risques auxquels ce bien est exposé sont disponibles sur le site Géorisques : www.georisques.gouv.fr’.
Nuances immobilières vous propose un bel emplacement, à Caen, avenue henry Chéron, une nouvelle petite résidence à l’architecture soignée comprenant 28 logements de standing.
Ici, nous vous proposons un appartement de type studio de 25m2 avec balcon, situé au 1er étage sur 3 avec ascenseur.
Idéal pour un investissement locatif.
Habitable fin 2026
Commerces et transports en communs accessibles à pied.
Les informations sur les risques auxquels ce bien est exposé sont disponibles sur le site Géorisques : www.georisques.gouv.fr’.
Offre commerciale en cours !
Nuances immobilières vous propose à Caen rive gauche, une résidence de standing à deux pas de l’hotel de police et du Leclerc LANFRANC.
Ici, nous vous présentons un appartement de 4 Pièces d’une surface habitable de 81m2 exposé Plein sud au calme et offrant deux vastes balcons en étage supérieur !
Il se compose d’une pièce de vie de 26m2, de 3 chambres de 10m2-11m2 et 12m2, deux salle d’eau, et 2 toilettes.
Belles prestations…
Parking sous-sol compris dans le prix.
Habitable dans 18 mois.
‘Les informations sur les risques auxquels ce bien est exposé sont disponibles sur le site Géorisques : www.georisques.gouv.fr’.
Offre commerciale en cours !
Nuances immobilières vous propose à Caen rive gauche, une résidence de standing à deux pas de l’hotel de police et du Leclerc LANFRANC.
Ici, nous vous présentons un appartement de 2 Pièces d’une surface habitable de 39m2 au calme et offrant un balcon en étage supérieur !
Il se compose d’une pièce de vie de 21m2, d’une chambre de 11m2, d’une salle d’eau et d’un toilettes.
Belles prestations…
Parking sous-sol compris dans le prix.
Habitable dans 18 mois.
‘Les informations sur les risques auxquels ce bien est exposé sont disponibles sur le site Géorisques : www.georisques.gouv.fr’.
Nuances immobilières vous propose à Ifs, à 7 minutes à pied des commerces, proche Mairie.
Un appartement, 2Pièces de 57m2 avec un balcon de 4m2 et une terrasse de 8m2 + comble aménageable de 26m2 avec la possibilité de créer 2 chambres et une salle d’eau.
Entrée, une pièce de vie principale de 39m2 avec cuisine ouverte, 1 chambre de 14m2, une salle d’eau avec wc.
2 Places de Parkings en sous sol inclus.
Habitable sous 12 mois
Commerces et transports en communs accessibles à pied.
‘Les informations sur les risques auxquels ce bien est exposé sont disponibles sur le site Géorisques : www.georisques.gouv.fr’.
Nuances immobilières vous propose à Ifs, à 7 minutes à pied des commerces, proche Mairie.
Un appartement de 2Pièces de 41m2 exposé plein Ouest en Rez-de-Jardin.
Entrée, une pièce de vie principale de 21m2 avec cuisine ouverte sur le jardin de 28m2, une chambre de 12m2 puis une salle d’eau avec wc dans l’entrée.
1 parking extérieur inclus pour votre confort.
Commerces et transports en communs accessibles à pied.
Habitable sous 12 mois.
Les informations sur les risques auxquels ce bien est exposé sont disponibles sur le site Géorisques : www.georisques.gouv.fr’.
Nuances immobilières vous propose un rare emplacement, à Hérouville Saint Clair Bourg, idéal pour habiter proche de Caen et bénéficier d’un accès rapide au périphérique et au centre ville.
Un appartement, de type Studio Bis de 34m2 ouvert sur un balcon, au 2ème et dernier étage, desservie par ascenseur, vendu avec 1 parking extérieur.
Il se compose d’une entrée menant à la pièce de vie principale de 25m2 avec cuisine ouverte (possibilité de fermer le séjour afin de créer une chambre) et d’une salle d’eau avec wc.
Transports en communs accessibles en 2 minutes.
Les informations sur les risques auxquels ce bien est exposé sont disponibles sur le site Géorisques : www.georisques.gouv.fr’.
Nuances immobilières vous propose à Caen-centre, face à la presqu’île, une nouvelle résidence proposant de très beaux logements avec vue sur le canal.
Ici, nous vous proposons un appartement 3 Pièces de 67m2 au 3eme étage de la résidence diposant d’un grand balcon de 11m2 exposé OUEST.
Ce bien se compose d’une entrée, une pièce de vie exposé OUEST, 2 chambres avec placards, un cellier, une salle d’eau et un WC séparé. Il est également vendu avec un garage fermé.
Particularité: Une exposition Ouest avec vue sur un parc et le canal.
Dernières normes phoniques et thermiques.
Habitable fin 2026
‘Les informations sur les risques auxquels ce bien est exposé sont disponibles sur le site Géorisques : www.georisques.gouv.fr’.
Nuances immobilières vous propose à Caen-centre, coté canal, avec le marché du dimanche à quelques minutes à pieds, une nouvelle résidence proposant de très beaux logements avec vue sur le canal.
Ici, nous vous proposons un appartement 5Pièces de 95m2 au dernier étage de la résidence diposant d’un extérieur de 46m2.
Ce bien disposera de 3 chambres, d’une pièce de vie de 37m2, de deux pièces d’eau, de 2 terrasses, et de deux garages.
Particularité: Une exposition Est et Ouest avec superbe vue.
Dernières normes phoniques et thermiques.
Habitable fin 2026
Rarissime !!!!
‘Les informations sur les risques auxquels ce bien est exposé sont disponibles sur le site Géorisques : www.georisques.gouv.fr’.
Nuances immobilières vous propose à SAINT AUBIN SUR MER à moins de 10 minutes à pied de la plage, un grand 3Pièces de 63m2 au 2em étage sur 2 avec ascenseur, disposant d’un balcon exposé à l’Est, une cave, 2 parkings extérieurs.
Cet appartement se situe au sein d’un bel ensemble résidentiel .composé de 4 petits immeubles de 2 étages et et quelques maisons.
Particularité :Une grande pièce de vie de 29m2 offrant une exposition Est et Sud, avec fenetre coté cuisine.
Idéal pour une résidence secondaire, ou une future résidence principale.
Dernières normes phoniques et thermiques.
Habitable en 2027.
‘Les informations sur les risques auxquels ce bien est exposé sont disponibles sur le site Géorisques : www.georisques.gouv.fr’.
Nuances immobilières vous propose à SAINT AUBIN SUR MER à moins de 10 minutes à pied de la plage, un grand 3Pièces de 69m2 au 2em étage sur 2 avec ascenseur, disposant d’un balcon exposé à l’Ouest, une cave, 2 parkings extérieurs.
Cet appartement se situe au sein d’un bel ensemble résidentiel .composé de 4 petits immeubles de 2 étages et et quelques maisons.
Particularité :Une grande pièce de vie de 31m2 offrant une exposition Ouest et Sud, avec fenetre coté cuisine.
Idéal pour une résidence secondaire, ou une future résidence principale.
Dernières normes phoniques et thermiques.
Habitable en 2027.
‘Les informations sur les risques auxquels ce bien est exposé sont disponibles sur le site Géorisques : www.georisques.gouv.fr’.
+ de 50% de la résidence vendue !
Nuances immobilières vous propose à Caen-centre, face à la presqu’île, une nouvelle résidence proposant de très beaux logements avec vue sur le canal.
Ici, nous vous proposons un appartement 3 Pièces de 68m2 au 2ème étage de la résidence diposant d’un grand balcon de 10m2 exposé OUEST.
Ce bien se compose d’une entrée, une pièce de vie exposé OUEST, 2 chambres avec placards, un cellier, une salle d’eau et un WC séparé. Il est également vendu avec un garage fermé.
Particularité : Une exposition Ouest avec vue sur un parc et le canal.
Dernières normes phoniques et thermiques.
Habitable fin 2026
‘Les informations sur les risques auxquels ce bien est exposé sont disponibles sur le site Géorisques : www.georisques.gouv.fr’.
NUANCES IMMOBILIERES vous propose dans le centre de Douvres la délivrande face à la mairie, un appartement de 3Pièces au calme de la rue avec deux balcons sur le séjour.
Au sein de cet ensemble immobilier avec quelques commerces en pied d’immeuble, nous avons sélectionné cet appartement de 3Pièces d’une surface habitable de 64m2 profitant d’une grande pièce de vie principale de 30m2.
Un bien confortable situé en angle de la résidence.
1 place de parking compris dans le prix.
Dernières normes phonique et thermique.
Habitable début 2027.
‘Les informations sur les risques auxquels ce bien est exposé sont disponibles sur le site Géorisques : www.georisques.gouv.fr’
NUANCES IMMOBILIERES vous propose dans le centre de Douvres la délivrande face à la mairie un beau 2Pièces de 42m2 parfaitement exposé Sud et Ouest.
Cet appartement de 2Pièces accessible par ascenseur offre une pièce de vie de 25m2 ouverte sur l’extérieur, puis, coté nuit, une chambre de 11.53m2 , et une pièce d’eau,avec wc .
1 place de parking extérieur compris
Dernières normes phonique et thermique.
Habitable début 2027.
‘Les informations sur les risques auxquels ce bien est exposé sont disponibles sur le site Géorisques : www.georisques.gouv.fr’
Offre commerciale en cours !
Nuances immobilières vous propose à Caen rive gauche, une résidence de standing à deux pas de l’hotel de police et du Leclerc LANFRANC.
Ici, nous vous présentons un appartement de 2 Pièces d’une surface habitable de 39m2 exposé Plein sud au calme et offrant un beau balcon en étage supérieur !
Il se compose d’une pièce de vie de 23m2, d’une chambre de 11m2 et d’une salle d’eau avec toilettes.
Belles prestations…
Parking sous-sol compris dans le prix.
Habitable dans 18 mois.
‘Les informations sur les risques auxquels ce bien est exposé sont disponibles sur le site Géorisques : www.georisques.gouv.fr’.
Nuances immobilières vous propose au Nord Ouest de Caen, à COURSEULLES SUR MER, au sein d’un environnement résidentiel composé de 4 résidences de 3 étages, un appartement 3P avec un extérieur profitant d’une exposition parfaite.
Ici, nous vous présentons un 3Pièces de 55m2 au premier étage bénéficiant d’un balcon, vendu avec 1 parking privé.
Cet appartement se compose d’une entrée avec à un cellier, d’un espace séjour salon de 27m2 ouvrant sur l’extérieur , un coin cuisine, une salle d’eau avec wc, et deux chambres dont une de plus de 11m2.
Particularité : Une exposition Sud-Ouest
Dernières normes phoniques et thermiques. Commerces, marché, boulangerie, à 9 minutes en vélo.
Habitable pour 2027.
‘Les informations sur les risques auxquels ce bien est exposé sont disponibles sur le site Géorisques : www.georisques.gouv.fr’.
Nuances immobilières vous propose au Nord Ouest de Caen, à COURSEULLES SUR MER, au sein d’un environnement résidentiel composé de 4 résidences de 3 étages, un appartement 3P avec un extérieur profitant d’une exposition parfaite.
Ici, nous vous présentons un 3Pièces de 54m2 au premier étage bénéficiant d’un balcon.
Cet appartement se compose d’une entrée avec un cellier, d’un espace séjour salon de 21m2 ouvrant sur l’extérieur, un coin cuisine, une salle d’eau avec wc, et deux chambres dont une de plus de 12m2.
Particularité : Une exposition Sud-Ouest
Dernières normes phoniques et thermiques. Commerces, marché, boulangerie, à 9 minutes en vélo.
Habitable pour 2027.
‘Les informations sur les risques auxquels ce bien est exposé sont disponibles sur le site Géorisques : www.georisques.gouv.fr’.
Nuances immobilières vous propose aux portes de Deauville-Trouville, à Touques sur les hauteurs, un Appartement de 2pièces de 47m2 au premier étage au calme avec ascenseur.
Une Pièce de vie principale de 21m2 ouverte sur le balcon de 6m2, une chambre de 11,65m2 avec placard, puis une salle d’eau avec wc.
Parking en sous sol compris dans le prix.
Dernières normes phoniques et thermiques
Habitable 3T 2026
‘Les informations sur les risques auxquels ce bien est exposé sont disponibles sur le site Géorisques : www.georisques.gouv.fr’.
Nuances immobilières vous propose aux portes de Deauville-Trouville, à Touques sur les hauteurs, un Appartement de 2pièces de 45m2 au deuxième étage au calme.
Une Pièce de vie principale de 27m2 ouverte sur le balcon de 8m2, une chambre de 11,47m2 avec placard, puis une salle d’eau avec wc.
Parking en sous sol compris dans le prix.
Dernières normes phoniques et thermiques
Habitable 2T 2026
‘Les informations sur les risques auxquels ce bien est exposé sont disponibles sur le site Géorisques : www.georisques.gouv.fr’.
Nuances immobilières vous propose aux portes de Deauville-Trouville, à Touques sur les hauteurs, un Appartement de 3pièces de 67m2 au rez de chaussée sur élevé avec balcon.
Une Pièce de vie principale de 27m2 ouverte sur le balcon de 10m2, une chambre de 12,20m2 avec placard, une autre chambre de 11m2 également avec placard, puis une salle d’eau, et wc indépendant
Parking en sous sol et cave compris dans le prix.
Dernières normes phoniques et thermiques
Habitable été 2026
‘Les informations sur les risques auxquels ce bien est exposé sont disponibles sur le site Géorisques : www.georisques.gouv.fr’.
Nuances immobilières vous propose à VILLERS SUR MER, à 3 minutes du parc naturel du Marais, au sein d’une nouvelle résidence aux dernières normes, un Appartement de 2pièces de 41m2 au 1er étage sur 2 avec balcon exposé Ouest.
Ce bien se compose d’une Pièce de vie principale de 23m2 ouverte sur le balcon de 5m2, une chambre de 11,60m2 avec emplacement pour placard, et proche de l’entrée, une salle d’eau avec toilettes.
Parking extérieur privé compris dans le prix.
Particularités : Belles prestations avec parquet stratifié dans toutes les pièces sêches, carralages en gré 45*45cm dans les pièces humides, salle d’eau avec meuble vasque, miroirs, bandeau lumineux, radiateur sèche serviettes ,pré équipement pour véhicules électriques, porte d’entrée avec sérrure 5 point, accès sécurisés).
Dernières normes phoniques et thermiques
Habitable fin 2027
‘Les informations sur les risques auxquels ce bien est exposé sont disponibles sur le site Géorisques : www.georisques.gouv.fr’.
Nuances immobilières vous propose à VILLERS SUR MER, à 3 minutes du parc naturel du Marais, au sein d’une nouvelle résidence aux dernières normes, un Appartement de 3pièces de 60.80m2 au 1er étage sur 2 avec balcon exposé Ouest.
Ce bien se compose d’une Pièce de vie principale de 23m2 ouverte sur le balcon de 7m2, deux chambres de 11,90m2 et 9.50m2, un placard dans l’entrée, une salle d’eau, avec toilettes indépendantes.
Parking extérieur privé compris dans le prix.
Particularités : Belles prestations avec parquet stratifié dans toutes les pièces sêches, carralages en gré 45*45cm dans les pièces humides, salle d’eau avec meuble vasque, miroirs, bandeau lumineux, radiateur sèche serviettes ,pré équipement pour véhicules électriques, porte d’entrée avec sérrure 5 point, accès sécurisés).
Dernières normes phoniques et thermiques
Habitable fin 2027
‘Les informations sur les risques auxquels ce bien est exposé sont disponibles sur le site Géorisques : www.georisques.gouv.fr’.
Nuances immobilières vous propose aux portes de Deauville-Trouville, à Touques sur les hauteurs, un Appartement de 2pièces de 45m2 au premier étage au calme avec ascenseur.
Une Pièce de vie principale de 27m2 ouverte sur le balcon de 8m2, une chambre de 11,47m2 avec placard, puis une salle d’eau avec wc.
Parking en sous sol compris dans le prix.
Dernières normes phoniques et thermiques
Habitable 3T 2026
‘Les informations sur les risques auxquels ce bien est exposé sont disponibles sur le site Géorisques : www.georisques.gouv.fr’.
Nuances immobilières vous propose aux portes de Deauville-Trouville, à Touques sur les hauteurs, un Appartement de 3pièces de 69m2 au premier étage au calme.
Une Pièce de vie principale de 30m2 ouverte sur le balcon de 15m2, une cuisine avec fenêtre porte febtere etacces au grand balcon, une chambre de 12m2 avec placard, une autre chambre de 10m2, puis une salle d’eau et wc indépendant
Parking en sous sol et une cave compris dans le prix.
Dernières normes phoniques et thermiques
Habitable été 2026
‘Les informations sur les risques auxquels ce bien est exposé sont disponibles sur le site Géorisques : www.georisques.gouv.fr’.
Compromis de vente en cours.
Nuances immobilières vous a proposé en exclusivité à Caen face à l’hippodrome, un appartement d’exception d’environ 74m2 composé de 3Pièces au sein de l’une des plus belles résidences de Caen.
Un appartement offrant un étage supérieur, des vues dominantes et exceptionelles !!!
Pour votre confort : Une exposition sud + 2 terrasses profondes (17m2) + un parking en sous sol + cuisine haut de gamme aménagée et équipée.
Construction de 2024 aux dernières normes phoniques et thermiques, et accessible PMR.
Prestations haut de gamme.
DPE : A
‘Les informations sur les risques auxquels ce bien est exposé sont disponibles sur le site Géorisques : www.georisques.gouv.fr’
Nuances immobilières vous propose un bel emplacement, à Caen, avenue henry Chéron, une nouvelle petite résidence à l’architecture soignée comprenant 28 logements de standing.
Ici, nous vous proposons un appartement de type 3 pièces traversant de 72m2 avec double balcon exposé au Sud et à l’Ouest, situé au dernier étage (3) desservi par ascenseur, et deux emplacements de parking.
Idéal pour une résidence principale.
Commerces et transports en communs accessibles à pied.
Habitable fin 2026.
Les informations sur les risques auxquels ce bien est exposé sont disponibles sur le site Géorisques : www.georisques.gouv.fr’.
Nuances immobilières vous propose un bel emplacement, à Caen, avenue henry Chéron, une nouvelle petite résidence à l’architecture soignée comprenant 28 logements de standing.
Ici, nous vous proposons un appartement traversant de 3Pièces avec jardin exposé au Sud et au calme.
Une pièce de vie principale de 22m2 ouverte sur l’extérieur, 2 chambres, une salle d’eau avec wc.
Vendu avec 1 parking privé.
Commerces et transports en communs accessibles à pied.
Les informations sur les risques auxquels ce bien est exposé sont disponibles sur le site Géorisques : www.georisques.gouv.fr’.
Nuances immobilières vous propose à l’entrée de Dozulé, une nouvelle résidence à prix maitrisés,
Ici, il s’agit d’un appartement de 2Pièces de 37m2 au dernier étage de la résidence façade sud…
Cet appartement disposera d’un balcon de 5m2, une pièce de vie de 22m2, et d’une pièce d’eau proche de l’entreé .
Belles prestations-Ascenseur
Pour plus de précisison, nous sommes disponibles pour vous répondre.
‘Les informations sur les risques auxquels ce bien est exposé sont disponibles sur le site Géorisques : www.georisques.gouv.fr’.
Nuances immobilières vous propose à l’entrée de Dozulé, une nouvelle résidence à prix maitrisés,
Ici, il s’agit d’un appartement 3Pièces de 60m2 avec balcon exposé Sud et ouest.
Une pièce de vie principale de 24m2 ouverte sur un balcon de 6m2, 2 chambres dont une de plus de 12m2,wc indépendant, et salle d’eau.
Exposition :Sud et Ouest
Parking extérieur inclus.
Particularité:1er étage avec ascenseur.
Volets roulants électriques-Radiateur sèche serviette électrique dans les pièces d’eau-Porte palière équipées de sérrure 3Poin-Vidéphone-Accès sécurisés à la résidence.
Belles prestations
‘Les informations sur les risques auxquels ce bien est exposé sont disponibles sur le site Géorisques : www.georisques.gouv.fr’.
Nuances immobilières vous présente aux portes de Caen, à Cagny, un appartement 3Pièces au dernier étage avec terrasse de 28m2 !
Il se compose de 2 chambres,une salle de bain et wc, puis d’un séjour de 23.50m2, avec espace cuisine et ouvert sur le trés bel extérieur.
Particularités de cet appartement : Des portes fenêtres dans tout l’appartement offrant un bel luminosité ,et une grande terrasse plein Ouest !
1 Parking inclus dans le prix.
Ascenseur
Dernier appartement disponible !
Habitable FIN 2026.
Travaux en cours.
‘Les informations sur les risques auxquels ce bien est exposé sont disponibles sur le site Géorisques : www.georisques.gouv.fr’.
Nuances immobilières vous propose d’acquérir un appartement au dernier étage aux portes de Honfleur à Equemauville, au sein d’un ensemble immobilier composé d’une résidence de deux étages avec ascenseur et de dix maisons.
Emplacement intéressant avec les commerces et transports en commun à 5 minutes .
Nous vous proposons un appartement offrant un plan optimisé permettant d’offrir à ses futurs occupants une pièce de vie de 19m2 ouverte sur un grand balcon exposé plein Sud, une vraie chambre et une alcove avec fenetre,puis une salle d’eau.
Un appartement vendu avec 2 parkings extérieurs.
Vue sur la campagne.Et accès au centre de honfleur facile en moins de 8 minutes…
Pour plus d’économies: Chauffage gaz individuel.
Dernières normes phoniques et thermiques
Habitable en 2027.
Offre commerciale spécial Lancement ! (Renseignez vous)
‘Les informations sur les risques auxquels ce bien est exposé sont disponibles sur le site Géorisques : www.georisques.gouv.fr’.
Nuances immobilières vous propose d’acquérir appartements au dernier étage aux portes de Honfleur à Equemauville, au sein d’un ensemble immobilier composé d’une résidence de deux étages avec ascenseur et de dix maisons.
Emplacement intéressant avec les commerces et transports en commun à 5 minutes .
Nous vous proposons un appartement 3 Pièces offrant une pièce de vie de 23m2 ouverte sur un grand balcon exposé plein Sud, deux chambres,puis un toilette et une salle d’eau.
Un appartement vendu avec 2 parkings extérieurs.
Vue sur la campagne.Et accès au centre de honfleur facile en moins de 8 minutes…
Pour plus d’économies: Chauffage gaz individuel.
Dernières normes phoniques et thermiques
Habitable en 2027.
Offre commerciale spécial Lancement ! (Renseignez vous)
‘Les informations sur les risques auxquels ce bien est exposé sont disponibles sur le site Géorisques : www.georisques.gouv.fr’.
Nuances immobilières vous propose d’acquérir appartements au dernier étage aux portes de Honfleur à Equemauville, au sein d’un ensemble immobilier composé d’une résidence de deux étages avec ascenseur et de dix maisons.
Emplacement intéressant avec les commerces et transports en commun à 5 minutes .
Nous vous proposons un appartement 2Pièces avec jardin de 90m2 permettant d’offrir à ses futurs occupants un espace supplémentaire.Il se compose d’une pièce de vie de 22m2 ,une chambre puis une salle d’eau avec wc.
Un appartement vendu avec 1 parking extérieur privé..
Accès au centre de honfleur facile en moins de 8 minutes…
Pour plus d’économies: Chauffage gaz individuel.
Dernières normes phoniques et thermiques
Habitable en 2027.
Offre commerciale spécial Lancement ! (Renseignez vous)
‘Les informations sur les risques auxquels ce bien est exposé sont disponibles sur le site Géorisques : www.georisques.gouv.fr’.
Nuances immobilières vous propose un bel emplacement, à Caen, avenue henry Chéron, une nouvelle petite résidence à l’architecture soignée comprenant 28 logements de standing.
Ici, nous vous proposons un appartement de type studio de 22m2 avec balcon, situé au dernier étage avec ascenseur.
Idéal pour un investissement locatif.
Habitable fin 2026
Commerces et transports en communs accessibles à pied.
Les informations sur les risques auxquels ce bien est exposé sont disponibles sur le site Géorisques : www.georisques.gouv.fr’.
Nuances immobilières vous propose à VILLERS SUR MER, à 3 minutes du parc naturel du Marais, au sein d’une nouvelle résidence aux dernières normes, un Appartement de 4pièces de 87m2 au sol au 2em et derneir étage avec terrasse exposé Sud.
Ce bien se compose d’une Pièce de vie principale de 34m2 ouverte sur la terrasse de 14m2, trois chambres de 11m2 , 10m2 et 9m2, deux salles d’eau, avec toilettes indépendantes.
Parking extérieur privé et une cave compris dans le prix.
Particularités : Belles prestations avec parquet stratifié dans toutes les pièces sêches, carralages en gré 45*45cm dans les pièces humides, salle d’eau avec meuble vasque, miroirs, bandeau lumineux, radiateur sèche serviettes ,pré équipement pour véhicules électriques, porte d’entrée avec sérrure 5 point, accès sécurisés).
Dernières normes phoniques et thermiques
Habitable fin 2027
‘Les informations sur les risques auxquels ce bien est exposé sont disponibles sur le site Géorisques : www.georisques.gouv.fr’.
Compromis de vente en cours.
Nuances Immobilières vous a proposé à la vente, un appartement T3 de 54m2, au pied de l’Abbaye aux Dames, à CAEN, dans une rue calme avec de jolies vues.
Il se composait d’une entrée avec placard, un séjour, 2 chambres dont une avec balconnet, une cuisine séparée, une salle de bains et un WC.
Une grande cave complète ce bien.
Ses atouts: son emplacement et ses vues, son parquet en chêne, ses radiateurs en fonte, ses fenêtres double vitrage, son chauffage individuel.
‘Les informations sur les risques auxquels ce bien est exposé sont disponibles sur le site Géorisques : www.georisques.gouv.fr’
Nuances immobilières vous propose un bel emplacement, à Caen, avenue henry Chéron, une nouvelle petite résidence à l’architecture soignée comprenant 28 logements de standing.
Ici, nous vous proposons un appartement de type studio de 24m2 avec balcon, situé au 2ème étage sur 3 avec ascenseur.
Idéal pour un investissement locatif.
Habitable fin 2026
Commerces et transports en communs accessibles à pied.
Les informations sur les risques auxquels ce bien est exposé sont disponibles sur le site Géorisques : www.georisques.gouv.fr’.
Nuances immobilières vous propose un bel emplacement, à Caen, avenue henry Chéron, une nouvelle petite résidence à l’architecture soignée comprenant 28 logements de standing.
Ici, nous vous proposons un appartement traversant de 4Pièces avec terrasse et jardin exposé au Sud et au calme.
Une pièce de vie principale de 33m2 ouverte sur l’extérieur, 3 chambres, une salle d’eau, et wc indépendant.
Vendu avec 2 parkings privés.
Commerces et transports en communs accessibles à pied.
Les informations sur les risques auxquels ce bien est exposé sont disponibles sur le site Géorisques : www.georisques.gouv.fr’.
Nuances immobilières vous propose un bel emplacement, à Caen, avenue henry Chéron, une nouvelle petite résidence à l’architecture soignée comprenant 28 logements de standing.
Ici, nous vous proposons un appartement traversant de 3Pièces au dernier étage avec une petite terrasse exposée au sud.
Une pièce de vie principale de 33m2 traversante exposée nord- sud, puis, 2 grandes chambres de 11m2 et 14m2, une salle d’eau avec wc.
Vendu avec 1 parking privé.
Habitable fin 2026
Commerces et transports en communs accessibles à pied.
Les informations sur les risques auxquels ce bien est exposé sont disponibles sur le site Géorisques : www.georisques.gouv.fr’.
Nuances immobilières vous propose un bel emplacement, à Caen, avenue henry Chéron, une nouvelle petite résidence à l’architecture soignée comprenant 28 logements de standing.
Ici, nous vous proposons un appartement de type 3 pièces traversant de 55m2 avec balcon exposé au Sud, situé au 2ème étage sur 3 desservi par ascenseur, et un emplacement de parking.
Idéal pour un investissement locatif ou résidence principale.
Commerces et transports en communs accessibles à pied.
Habitable fin 2026.
Les informations sur les risques auxquels ce bien est exposé sont disponibles sur le site Géorisques : www.georisques.gouv.fr’.
Nuances Immobilières vous propose dans le centre de Carpiquet avec commerces à proximité, un beau 2Pièces de 39m2 exposé Est au 2ème et dernier étage, avec ascenseur, offrant un balcon.
Une pièce de vie de 18m2 ouverte sur l’extérieur, puis 1 chambre de plus de 11m2, une pièce d’eau et WC indépendant.
Vendu avec 1 parking privé en sous-sol.
Faibles charges à prévoir.
Dernières normes phoniques et thermiques.
Habitable fin 2026.
‘Les informations sur les risques auxquels ce bien est exposé sont disponibles sur le site Géorisques : www.georisques.gouv.fr’.
Nuances Immobilières vous propose dans le centre de Carpiquet avec commerces à proximité, un beau 2Pièces de 43m2 exposé Est au 2ème et dernier étage, avec ascenseur, offrant une terrasse de 20m2.
Une pièce de vie double exposition de 20m2 ouverte sur l’extérieur, puis 1 chambre de plus de 12m2 ouverte également sur la terrasse et pièce d’eau avec WC.
Vendu avec 2 parkings privés. (sous sol et extérieur)
Faibles charges à prévoir.
Dernières normes phoniques et thermiques.
Habitable fin 2026.
‘Les informations sur les risques auxquels ce bien est exposé sont disponibles sur le site Géorisques : www.georisques.gouv.fr’.
Nuances Immobilières vous propose dans le centre de Carpiquet avec commerces à proximité, un beau 2Pièces de 37m2 avec ascenseur, offrant une terrasse de plus de 12m2 expo SUD.
Une pièce de vie de 17m2 ouverte sur l’extérieur, puis 1 chambre de plus de 11m2, une pièce d’eau avec WC.
Vendu avec 1 parking privé en sous-sol.
Faibles charges à prévoir.
Dernières normes phoniques et thermiques.
Habitable fin 2026.
‘Les informations sur les risques auxquels ce bien est exposé sont disponibles sur le site Géorisques : www.georisques.gouv.fr’.
Nuances Immobilières vous propose à IFS limite Caen avec accès à deux minutes au tramway ‘Arrêt AVIATION’, une belle opportunité de vous positionner sur un appartement 3Pièces plein Sud avec balcon et parking.
Cet appartement se présente au premier étage avec ascenseur, il dispose d’une pièce de vie de 27m2, deux chambres dont une grande chambre de plus de 12m2,une pièce d’eau avec douche à l’italienne sans marche.
Chauffage urbain avec décompteur économe en énergie.
Dernières normes phoniques et thermiques.
Habitable en 2027.
Particularité: Une exposition parfaite.
Achat uniquement destiné à un usage de résidence principale et selon revenus.
Renseignements détaillés sur simple demande.
‘Les informations sur les risques auxquels ce bien est exposé sont disponibles sur le site Géorisques : www.georisques.gouv.fr’.
Nuances Immobilières vous propose à Bretteville sur odon sur les hauteurs, dans un bel environnement résidentiel à proximité de la nouvelle sortie du périphérique (les pépinières), un appartement au deuxième étage avec ascenseur.
Il s’agit d’un 3Pièces de 62m2 exposé Sud et Ouest ouvert sur un balcon de 6m2.
Une grande pièce de vie de 26m2 ouverte sur l’extérieur, un espace cuisine avec fenêtre, puis deux chambres dont une grande de plus de 12m2, une salle d’eau et un wc indépendant.
Pour votre confort, 2 stationnements compris dans le prix, et une cave.
Hall d’entrée décoré et sécurisé.
Local vélo.
Dernières normes phoniques et thermiques.
Chauffage électrique individuel.
Habitable fin 2026.
‘Les informations sur les risques auxquels ce bien est exposé sont disponibles sur le site Géorisques : www.georisques.gouv.fr’.
Nuances Immobilières vous propose à Bretteville-sur-Odon sur les hauteurs, dans un bel environnement résidentiel à proximité de la nouvelle sortie du périphérique (les pépinières), un appartement au 3ème et dernier étage avec ascenseur.
Il s’agit d’un 2Pièces de 45m2 exposé Sud et Ouest ouvert sur un extérieur de 22m2.
Une grande pièce de vie de 27m2 ouverte sur l’extérieur, un espace cuisine avec porte-fenêtre pour accéder à l’extérieur, puis une chambre également ouverte sur l’extérieur, une salle d’eau avec wc.
Pour votre confort, 1 stationnement en sous-sol compris dans le prix, et une cave.
Hall d’entrée décoré et sécurisé.
Local vélo.
Dernières normes phoniques et thermiques.
Chauffage électrique individuel.
Habitable fin 2026.
‘Les informations sur les risques auxquels ce bien est exposé sont disponibles sur le site Géorisques : www.georisques.gouv.fr’.
Nuances Immobilières vous propose à Bretteville sur odon sur les hauteurs, dans un bel environnement résidentiel à proximité de la nouvelle sortie du périphérique (les pépinières), un appartement au1er étage avec ascenseur.
Il s’agit d’un 3Pièces de 60m2 ouvert sur une terrasse de 22m2.
Une grande pièce de vie de 27m2 ouverte sur l’extérieur, un espace cuisine, puis deux chambres, une salle d’eau et un wc indépendant.
Pour votre confort, 2 stationnements sous-sol compris dans le prix, et une cave.
Hall d’entrée décoré et sécurisé.
Local vélo.
Dernières normes phoniques et thermiques.
Chauffage électrique individuel.
Habitable fin 2026.
‘Les informations sur les risques auxquels ce bien est exposé sont disponibles sur le site Géorisques : www.georisques.gouv.fr’.
Nuances Immobilières vous propose, au sein de l’ECO QUARTIER de Fleury sur Orne, à proximité immédiate du tramway et des commerces de la place centrale, un beau 3 Pièces avec belle terrasse parfaitement exposée.
Cet Appartement proposera une pièce de vie principale avec cuisine aménagée de 31m2 ouverte sur la terrasse, puis 2 chambres de 11m2 et 10m2, une salle d’eau, et wc indépendant. Placards aménagés.
Particularité : Une superbe terrasse
Vendu avec un parking privé.
Chauffage urbain avec décompteur individuel.
Dernières normes phoniques et thermiques.
Jardin intérieur au sein de la résidence.
Ascenseur.
Habitable en 2026.
‘Les informations sur les risques auxquels ce bien est exposé sont disponibles sur le site Géorisques : www.georisques.gouv.fr’.
Nuances Immobilières vous propose, au sein de l’ECO QUARTIER de Fleury sur Orne, à proximité immédiate du tramway et des commerces de la place centrale, un beau 2 Pièces avec grand balcon au 4ème étage sur 5 avec ascenseur.
Cet Appartement proposera une pièce de vie principale avec cuisine aménagée de 25m2 ouverte sur le balcon profond de 8m2 exposé Plein Ouest, puis une chambre de 11m2, une salle d’eau avec wc et un bel espace de rangement de plus de 2m2. Placards aménagés.
Particularité : Une exposition parfaite pour profiter de la fin de journée au soleil.
Vendu avec un parking privé.
Chauffage urbain avec décompteur individuel.
Dernières normes phoniques et thermiques.
Jardin intérieur au sein de la résidence.
Ascenseur.
Habitable en 2026.
‘Les informations sur les risques auxquels ce bien est exposé sont disponibles sur le site Géorisques : www.georisques.gouv.fr’.
Nuances Immobilières vous propose à Caen, quartier du Nice caennais et de lahaie vigné avec accès facile au futur tramway, une nouvelle résidence de seulement 3 étages en coeur de ville avec commerces accessibles à pied.
Ce bien situé au 1er étage de la résidencen offre une pièce de vie de 30m2 ouverte sur un immense balcon de 11m2 exposé soleil du matin, trois chambres puis une salle d’eau , une wc indépendant.
Vendu avec 2 parkings au sous sol.
Personnalisation possible (aménagement,distribution…etc)
Habitable fin 2027.
‘Les informations sur les risques auxquels ce bien est exposé sont disponibles sur le site Géorisques : www.georisques.gouv.fr’.
Nuances Immobilières vous propose à Caen, quartier du Nice caennais et de lahaie vigné avec accès facile au futur tramway, une nouvelle résidence de seulement 3 étages en coeur de ville avec commerces accessibles à pied.
Ce bien situé au dernier étage de la résidence offre une pièce de vie de 21.50m2 ouverte sur un immense balcon de 7m2 exposé soleil du matin, une grande chambres de 12.5m2 puis une salle d’eau avec wc, placard dans l’entrée.
Vendu avec 1 parking au sous sol.
Personnalisation possible (aménagement,distribution…etc)
Habitable fin 2027.
‘Les informations sur les risques auxquels ce bien est exposé sont disponibles sur le site Géorisques : www.georisques.gouv.fr’.
Nuances Immobilières vous propose à Caen, quartier du Nice caennais et de lahaie vigné avec accès facile au futur tramway, une nouvelle résidence de seulement 3 étages en coeur de ville avec commerces accessibles à pied.
Ce bien situé au premier étage de la résidence offre une pièce de vie de 21.50m2 ouverte sur un immense balcon de 7m2 exposé soleil du matin, une grande chambre de 12.5m2 puis une salle d’eau avec wc, placard dans l’entrée.
Vendu avec 1 parking au sous sol.
Personnalisation possible (aménagement,distribution…etc)
Habitable fin 2027.
‘Les informations sur les risques auxquels ce bien est exposé sont disponibles sur le site Géorisques : www.georisques.gouv.fr’.
Nuances Immobilières vous propose à Caen, quartier du Nice caennais et de lahaie vigné avec accès facile au futur tramway, une nouvelle résidence de seulement 3 étages en coeur de ville avec commerces accessibles à pied.
Ce bien situé au dernier étage de la résidence offre une pièce de vie de 25.50m2 ouverte sur un immense balcon de 6m2 exposé soleil de fin de journée, une grande chambre de 14m2 puis une salle d’eau avec wc, placard dans l’entrée.
Vendu avec 1 parking au sous sol.
Personnalisation possible (aménagement,distribution…etc)
Habitable fin 2027.
‘Les informations sur les risques auxquels ce bien est exposé sont disponibles sur le site Géorisques : www.georisques.gouv.fr’.
Nuances Immobilières vous propose à Caen, quartier du Nice caennais et de lahaie vigné avec accès facile au futur tramway, une nouvelle résidence de seulement 3 étages en coeur de ville avec commerces accessibles à pied.
Ce bien situé au premier étage de la résidence offre une pièce de vie de 25.50m2 ouverte sur un immense balcon de 6m2 exposé soleil de fin de journée, une grande chambre de 14m2 puis une salle d’eau avec wc, placard dans l’entrée.
Vendu avec 1 parking au sous sol.
Personnalisation possible (aménagement,distribution…etc)
Habitable fin 2027.
‘Les informations sur les risques auxquels ce bien est exposé sont disponibles sur le site Géorisques : www.georisques.gouv.fr’.
Nuances Immobilières vous propose à Caen, quartier du Nice caennais et de lahaie vigné avec accès facile au futur tramway, une nouvelle résidence de seulement 3 étages en coeur de ville avec commerces accessibles à pied.
Ce bien situé en rez de jardin de la résidence offre une pièce de vie de 21.50m2 ouverte sur un immense jardin de 77m2 et une terrasse de 7m2 exposé soleil du matin, une grande chambre de 12.5m2 puis une salle d’eau avec wc, placard dans l’entrée.
Vendu avec 1 parking au sous sol.
Personnalisation possible (aménagement,distribution…etc)
Habitable fin 2027.
‘Les informations sur les risques auxquels ce bien est exposé sont disponibles sur le site Géorisques : www.georisques.gouv.fr’.
Nuances Immobilières vous propose à Caen, quartier du Nice caennais et de la haie vigné avec accès facile au futur tramway, une nouvelle résidence de seulement 3 étages en coeur de ville avec commerces accessibles à pied.
Ce bien situé au premier étage de la résidence offre une pièce de vie de 19m2 et une salle d’eau avec wc, placard dans l’entrée.
Personnalisation possible (aménagement,distribution…etc)
Habitable fin 2027.
‘Les informations sur les risques auxquels ce bien est exposé sont disponibles sur le site Géorisques : www.georisques.gouv.fr’.
Nuances Immobilières vous propose à Caen, quartier du Nice caennais et de la haie vigné avec accès facile au futur tramway, une nouvelle résidence de seulement 3 étages en coeur de ville avec commerces accessibles à pied.
Ce bien situé au 3ème et dernier étage de la résidence offre une pièce de vie de 19m2 et une salle d’eau avec wc, placard dans l’entrée.
Personnalisation possible (aménagement,distribution…etc)
Habitable fin 2027.
‘Les informations sur les risques auxquels ce bien est exposé sont disponibles sur le site Géorisques : www.georisques.gouv.fr’.
Nuances Immobilières vous propose à Caen, quartier du Nice caennais et de la haie vigné avec accès facile au futur tramway, une nouvelle résidence de seulement 3 étages en coeur de ville avec commerces accessibles à pied.
Ce bien situé en rez de jardin de la résidence offre une pièce de vie de 33m2 ouverte sur un immense jardin de 113m2 et une terrasse de 16m2 exposée soleil du matin, une grande chambre de 13m2, une deuxième chambre de 10m2 puis une salle de bain, wc indépendant, un cellier et placard dans l’entrée.
Vendu avec 1 parking au sous sol.
Personnalisation possible (aménagement,distribution…etc)
Habitable fin 2027.
‘Les informations sur les risques auxquels ce bien est exposé sont disponibles sur le site Géorisques : www.georisques.gouv.fr’.
Nuances Immobilières vous propose à Caen, quartier du Nice caennais et de la haie vigné avec accès facile au futur tramway, une nouvelle résidence de seulement 3 étages en coeur de ville avec commerces accessibles à pied.
Ce bien situé en rez de jardin de la résidence offre une pièce de vie de 36m2 ouverte sur une terrasse de 11m2 exposée SUD-EST, deux chambres (12m2 et 11m2) puis une salle de bain, wc indépendant, et placard dans l’entrée.
Vendu avec 1 parking au sous sol.
Personnalisation possible (aménagement,distribution…etc)
Habitable fin 2027.
‘Les informations sur les risques auxquels ce bien est exposé sont disponibles sur le site Géorisques : www.georisques.gouv.fr’.
Nuances Immobilières vous propose à Caen, quartier du Nice caennais et de la haie vigné avec accès facile au futur tramway, une nouvelle résidence de seulement 3 étages en coeur de ville avec commerces accessibles à pied.
Ce bien situé au premier étage de la résidence offre une pièce de vie de 27m2 ouverte sur un immense balcon de 11m2 exposé soleil de fin de journée, une grande chambre de 13m2 également ouverte sur le balcon, une seconde chambre de 10m2 puis une salle de bain, wc indépendant, un cellier et placard dans l’entrée.
Vendu avec 1 parking au sous sol.
Personnalisation possible (aménagement,distribution…etc)
Habitable fin 2027.
‘Les informations sur les risques auxquels ce bien est exposé sont disponibles sur le site Géorisques : www.georisques.gouv.fr’.
Nuances Immobilières vous propose à Caen, quartier du Nice caennais et de la haie vigné avec accès facile au futur tramway, une nouvelle résidence de seulement 3 étages en coeur de ville avec commerces accessibles à pied.
Ce bien situé au troisième et dernier étage de la résidence offre une pièce de vie de 27m2 ouverte sur un immense balcon de 11m2 exposé soleil de fin de journée, une grande chambre de 13m2 également ouverte sur le balcon, une seconde chambre de 10m2 puis une salle de bain, wc indépendant, un cellier et placard dans l’entrée.
Vendu avec 1 parking au sous sol.
Personnalisation possible (aménagement,distribution…etc)
Habitable fin 2027.
‘Les informations sur les risques auxquels ce bien est exposé sont disponibles sur le site Géorisques : www.georisques.gouv.fr’.
Nuances Immobilières vous propose à Caen, quartier du Nice caennais et de la haie vigné avec accès facile au futur tramway, une nouvelle résidence de seulement 3 étages en coeur de ville avec commerces accessibles à pied.
Ce bien situé au premier étage de la résidence offre une pièce de vie de 21m2 ouverte sur un grand balcon de 7m2 exposé soleil de fin de journée, une grande chambre de 13m2, une seconde chambre de 9m2 puis une salle de bain, wc indépendant, un cellier et placard dans l’entrée.
Vendu avec 1 parking au sous sol.
Personnalisation possible (aménagement,distribution…etc)
Habitable fin 2027.
‘Les informations sur les risques auxquels ce bien est exposé sont disponibles sur le site Géorisques : www.georisques.gouv.fr’.
Nuances Immobilières vous propose à Caen, quartier du Nice caennais et de la haie vigné avec accès facile au futur tramway, une nouvelle résidence de seulement 3 étages en coeur de ville avec commerces accessibles à pied.
Ce bien situé au troisième et dernier étage de la résidence offre une pièce de vie de 21m2 ouverte sur un grand balcon de 7m2 exposé soleil de fin de journée, une grande chambre de 13m2, une seconde chambre de 9m2 puis une salle de bain, wc indépendant, un cellier et placard dans l’entrée.
Vendu avec 1 parking au sous sol.
Personnalisation possible (aménagement,distribution…etc)
Habitable fin 2027.
‘Les informations sur les risques auxquels ce bien est exposé sont disponibles sur le site Géorisques : www.georisques.gouv.fr’.
Nuances Immobilières vous propose à Caen, quartier du Nice caennais et de lahaie vigné avec accès facile au futur tramway, une nouvelle résidence de seulement 3 étages en coeur de ville avec commerces accessibles à pied.
Ce bien situé en rez de jardin offre une pièce de vie de 52m2 ouverte sur l’extérieur, trois belles chambres dont une avec terrasse puis une salle d’eau avec wc, une autre wc indépendant, et une espace celier.
Vendu avec 2 parkings au sous sol.
Personnalisation possible (aménagement,distribution…etc)
Habitable fin 2027.
‘Les informations sur les risques auxquels ce bien est exposé sont disponibles sur le site Géorisques : www.georisques.gouv.fr’.
Nuances Immobilières vous propose à Caen, quartier du Nice caennais et de lahaie vigné avec accès facile au futur tramway, une nouvelle érsidence de seulement 3 étages en coeur de ville avec commerces accessibles à pied.
Ce bien situé au dernier étage avec ascenseur offre, une pièce de vie de 44m2 ouverte sur l’extérieur, trois belles chambres dont une avec balcon, puis une salle d’eau avec wc, une autre wc indépendant, et une espace celier.
Vendu avec parking privé au sous sol.
Personnalisation possible (aménagement,distribution…etc)
Habitable fin 2027.
‘Les informations sur les risques auxquels ce bien est exposé sont disponibles sur le site Géorisques : www.georisques.gouv.fr’.
Nuances immobilières vous propose à IFS, à la limite de Caen, avec accès à pied au tramway, la possibilité de vous offrir un superbe appartement de 2Pièces exposé SUD-EST, au 1er étage avec ascenseur à prix maitrisé.
Ici nous vous présentons cet appartement de 43m2, disposant de d’1 chambre, d’une pièce de vie de 23m2 ouverte sur l’extérieur, d’une pièce d’eau et toilettes.
Chauffage urbain, source d’économies et de confort.
Coeur d’îlot avec jardins potagers
Salle de télétravail et salle de sport réservée exclusivement aux résidents
Piste cyclable pour rejoindre le centre-ville de Caen
Habitable Fin 2026
‘Les informations sur les risques auxquels ce bien est exposé sont disponibles sur le site Géorisques : www.georisques.gouv.fr’.
Nuances immobilières vous a proposé à CAEN du coté CHR, un rare Appartement 6P de 114m2 habitable offrant 3 terrasse pour une surface total de 100m2 !
Ce bien de standing proposait une pièce de vie de 38m2 ouvrant sur l’extérieur, puis 3 chambres,2 salles d’eau et 2 wc, et une partie originale permettant de s’offrir un espace bureau séparé et accessible depuis une autre terrasse.
2 Parkings compris dans le prix au sous sol.
exposition Sud et Ouest
Dernières normes phoniques et thermiques
Les informations sont disponibles sur le site Géorisques : www.georisques.gouv.fr’.
Plus disponible à la vente :
Nuances immobilières vous a proposé en exclusivité à Caen quartier Saint Ouen, rue du pont créon, un appartement de type 2Pièces de 50m2 environ au sein d’un environnement résidentiel et au calme.
Ce bien se présentait par une entrée avec grand placard, une cuisine aménagée fermé, une pièce de vie de 21m2 ouverte sur le beau balcon exposé Ouest, puis coté nuit, un petit dégagement desservant une pièce d’eau, et la chambre.
Vous auriez trouvez un parquet au sol récent, toutes les huisseries sont en double vitrage aluminium avec volets roulants électriques.
Particularité: Une grande luminosité de part ses grandes baies vitrées et fenetres.
Ce bien était vendu avec un parking privatif et une cave.
Ascenseur-Digicode-Accès sécurisés.Une partie du chauffage est compris dans les charges
‘Les informations sur les risques auxquels ce bien est exposé sont disponibles sur le site Géorisques : www.georisques.gouv.fr’
Nuances immobilières vous propose à IFS, à la limite de Caen, avec accès à pied au tramway, la possibilité de vous offrir un superbe appartement de 4Pièces exposé OUEST, au 2ème étage avec ascenseur.
Ici nous vous présentons cet apartement de 90m2, disposant de 3 chambres, d’une pièce de vie de 32m2 ouverte sur l’extérieur, deux pièces d’eau et toilettes séparés.
Chauffage urbain, source d’économies et de confort.
Habitable Fin 2026
‘Les informations sur les risques auxquels ce bien est exposé sont disponibles sur le site Géorisques : www.georisques.gouv.fr’.
Nuances immobilières vous propose aux portes de Deauville, à Touques, à deux pas du centre avec commerces accessibles à pied, une petite résidence avec toiture mansardée composée de 19 logements en tout répartie en 2 bâtiments.
Ici, nous vous présentons au sein du bâtiment A, un appartement de type 3Pièces duplex bénéficiant d’une terrasse de 26m2 exposée Sud et ouest, vendu avec un garage sous l’appartement.
Particularité : Accés indépendant par une coursive
Emplacement idéal à deux pas des commerces et transport en communs.
‘Les informations sur les risques auxquels ce bien est exposé sont disponibles sur le site Géorisques : www.georisques.gouv.fr’.
Nuances immobilières vous propose aux portes de Deauville, à Touques, à deux pas du centre avec commerces accessibles à pied, une petite résidence avec toiture mansardée composée de 19 logements en tout répartie en 2 bâtiments.
Seulement 3 étages pour votre confort desservie par ascenseur pour le bâtiment B.
Ici, nous vous présentons un appartement de type 3Pièces avec jardin, et terrasse exposés Sud, vendu avec un grand garage indépendant de 25m2.
Emplacement idéaL proche des transports et à deux pas des commerces à pied.
‘Les informations sur les risques auxquels ce bien est exposé sont disponibles sur le site Géorisques : www.georisques.gouv.fr’.
Nuances immobilières vous a proposé à SAINT AUBIN SUR MER à moins de 10 minutes à pied de la plage, un grand 4/5Pièces de 108m2 avec jardin exposé Sud et est.
Ce bien était vendu avec 2 caves et 2 parkings extérieurs.
Cet appartement se situait au sein d’un bel ensemble résidentiel .composé de 4 petits immeubles de 2 étages et et quelques maisons.
Particularité :Une grande pièce de vie de 45m2 oouvrant sur un grand jardin clos, et un espace cuisine avec fenêtre .
Idéal pour une résidence secondaire, ou une future résidence principale.
Dernières normes phoniques et thermiques.
‘Les informations sur les risques auxquels ce bien est exposé sont disponibles sur le site Géorisques : www.georisques.gouv.fr’.
Nuances immobilières vous présente sur les hauteurs de Deauville sur le secteur église Saint Laurent, à proximité immédiate du Golf , une petite résidence cossue avec toit à la mansart.
Ici, nous vous présentons un appartement au dernier étage avec ascenseur et parfaitement exposé.
L’appartement disposera d’une pièce de vie de 26m2 ouverte sur l’extérieur, puis 2 chambres dont une avec accès sur le balcon profond, salle d’eau avec douche à l’italienne, et wc indépendant.
Cette résidence propose de belles prestations (volets roulants électriques,revetement de sol en carrellage 45*45 pour la pièce de vie principale,parquet dans les chambres, menuiseries avec volets roulants électriques, bac à douche de grande taille (80*110cm) , salle d’eau aménagée ,vidéophone controlant les accès).
En complément, un stationnement au sous sol et une cave compris dans le prix.
Habitable début 2027.
Les informations sur les risques auxquels ce bien est exposé sont disponibles sur le site Géorisques : www.georisques.gouv.fr’.
Nuances immobilières vous présente sur les hauteurs de Deauville sur le secteur église Saint Laurent, à proximité immédiate du Golf , une petite résidence cossue avec toit à la mansart.
Ici, nous vous présentons un appartement au dernier étage avec ascenseur et balcon de 5m2.
L’appartement disposera d’une pièce de vie de 19m2 ouverte sur l’extérieur, puis 1 chambre de 10.58m2, salle d’eau avec douche à l’italienne, et wc.
Cette résidence propose de belles prestations (volets roulants électriques,revetement de sol en carrellage 45*45 pour la pièce de vie principale,parquet dans les chambres, menuiseries avec volets roulants électriques, bac à douche de grande taille (80*110cm) , salle d’eau aménagée ,vidéophone controlant les accès).
En complément, un stationnement au sous sol et une cave compris dans le prix.
Idéale pour un résidence princiaple ou un investissement locatif.(forte demande sur le secteur)
Habitable début 2027.
Les informations sur les risques auxquels ce bien est exposé sont disponibles sur le site Géorisques : www.georisques.gouv.fr’.
Nuances immobilières vous présente sur les hauteurs de Deauville sur le secteur église Saint Laurent, à proximité immédiate du Golf , une petite résidence cossue avec toit à la mansart.
Ici, nous vous présentons un appartement au dernier étage avec ascenseur et balcon de plus de 5m2 plein sud.
L’appartement disposera d’une pièce de vie de 22m2 ouverte sur l’extérieur, puis 1 chambre de 10.87m2, salle d’eau avec douche à l’italienne, et wc.
Cette résidence propose de belles prestations (volets roulants électriques,revetement de sol en carrellage 45*45 pour la pièce de vie principale,parquet dans les chambres, menuiseries avec volets roulants électriques, bac à douche de grande taille (80*110cm) , salle d’eau aménagée ,vidéophone controlant les accès).
En complément, un stationnement au sous sol et une cave compris dans le prix.
Idéale pour un résidence princiaple ou un investissement locatif.(forte demande sur le secteur)
Habitable début 2027.
Les informations sur les risques auxquels ce bien est exposé sont disponibles sur le site Géorisques : www.georisques.gouv.fr’.
Nuances immobilières vous propose l’opportunité d’investir sur un emplacement numéro 1 à Caen, au pied du Campus 1, et du tramway.
Nous vous proposons une résidence offrant la possibilité de louer son bien sous le statut de loueur en meublé non professionel.
Forte demande et valeur locative sur ce secteur ultra récherche par les étudiants.
Avantages proposés aux investisseurs :
– Une gestion locative des appartements entièrement déléguée pour 100% de sérénité, et la possibilité de louer à vos proches.
Avantages proposés aux occupants :
– Conciergerie, café coworking, laverie connectée, fibre haut débit…
Réelle opportunité d’investissement…(loyer estimé 615EUR ttc/mois selon étude de marché qui peut vous être transmise).
Disponible 2027.
Les informations sur les risques auxquels ce bien est exposé sont disponibles sur le site Géorisques : www.georisques.gouv.fr’.
Nuances immobilières vous propose l’opportunité d’investir sur un emplacement numéro 1 à Caen, au pied du Campus 1, et du tramway.
Nous vous proposons une résidence offrant la possibilité de louer son bien sous le statut de loueur en meublé non professionel.
Cet appartement 3 pièces est idéal pour de la colocation. Il dispose d’un espace de vie partagé avec cuisine, ainsi que de deux chambres indépendantes, chacune équipée de sa propre salle d’eau et de WC privatifs.
Forte demande et valeur locative sur ce secteur ultra récherche par les étudiants.
Avantages proposés aux investisseurs :
– Une gestion locative des appartements entièrement déléguée pour 100% de sérénité, et la possibilité de louer à vos proches.
Avantages proposés aux occupants :
– Conciergerie, café coworking, laverie connectée, fibre haut débit…
Réelle opportunité d’investissement…(loyer estimé 960EUR ttc/mois selon étude de marché qui peut vous être transmise).
Disponible 2027.
Les informations sur les risques auxquels ce bien est exposé sont disponibles sur le site Géorisques : www.georisques.gouv.fr’.
Nuances immobilières vous propose l’opportunité d’investir sur un emplacement numéro 1 à Caen, au pied du Campus 1, et du tramway.
Nous vous proposons une résidence offrant la possibilité de louer son bien sous le statut de loueur en meublé non professionel.
Cet appartement 3 pièces est idéal pour de la colocation. Il dispose d’un espace de vie partagé avec cuisine, ainsi que de deux chambres indépendantes, chacune équipée de sa propre salle d’eau et de WC privatifs.
Forte demande et valeur locative sur ce secteur ultra récherche par les étudiants.
Avantages proposés aux investisseurs :
– Une gestion locative des appartements entièrement déléguée pour 100% de sérénité, et la possibilité de louer à vos proches.
Avantages proposés aux occupants :
– Conciergerie, café coworking, laverie connectée, fibre haut débit…
Réelle opportunité d’investissement…(loyer estimé 880EUR ttc/mois selon étude de marché qui peut vous être transmise).
Disponible 2027.
Les informations sur les risques auxquels ce bien est exposé sont disponibles sur le site Géorisques : www.georisques.gouv.fr’.
Nuances immobilières vous présente sur les hauteurs de Deauville sur le secteur église Saint Laurent, à proximité immédiate du Golf , une petite résidence cossue avec toit à la mansart.
Ici, nous vous présentons un appartement avec jardin et terrasse exposés Soleil du matin.
L’appartement disposera d’une pièce de vie de 25m2 ouverte sur l’extérieur, puis 2 chambre dont une de plus de 11m2, salle d’eau avec douche à l’italienne, et wc indépendant.
Cette résidence propose de belles prestations (volets roulants électriques,revetement de sol en carrellage 45*45 pour la pièce de vie principale,parquet dans les chambres, menuiseries avec volets roulants électriques, bac à douche de grande taille (80*110cm) , salle d’eau aménagée ,vidéophone controlant les accès).
En complément, un stationnement au sous sol et une cave compris dans le prix.
Idéale pour un résidence princiaple ou un investissement locatif.(forte demande sur le secteur)
Habitable début 2027.
Les informations sur les risques auxquels ce bien est exposé sont disponibles sur le site Géorisques : www.georisques.gouv.fr’.
Nuances immobilières vous propose à honfleur proche du centre,un appartement 3Pièces de 65m2 avec terrasse de 21m2 au 1er étage avec ascenseur.
Ici, nous vous présentons un bel appartement proposant une pièce de vie principale de 27m2 ouverte sur la terrasse exposée soleil du matin,2 chambres de 11m2, 11m2, une salle d’eau avec fenêtre, wc indépendant .Un placard de rangement dans l’entrée et un autre grand dans une des chambres.
Habitable été 2025.
Ascenseur ,accès PMR.
Dernières normes phoniques et thermiques.
‘Les informations sur les risques auxquels ce bien est exposé sont disponibles sur le site Géorisques : www.georisques.gouv.fr’.
Nuances immobilières vous propose aux portes de Deauville, à Touques, à deux pas du centre avec commerces accessibles à pied, une petite résidence avec toiture mansardée composée de 19 logements en tout répartie en 2 bâtiments.
Ici, nous vous présentons au sein du bâtiment B, un appartement en rez de jardin de type 2Pièces bénéficiant d’une terrasse de 4m2 exposée Sud et d’un grand jardin clos.
Pièce de vie de 23m2, une chambre de plus de 12m2.
Chauffage gaz individuel
Emplacement idéal à deux pas des commerces et arret bus.
‘Les informations sur les risques auxquels ce bien est exposé sont disponibles sur le site Géorisques : www.georisques.gouv.fr’.
Nuances immobilières vous propose aux portes de Deauville, à Touques, à deux pas du centre avec commerces accessibles à pied, une petite résidence avec toiture mansardée composée de 19 logements en tout répartie en 2 bâtiments.
Ici, nous vous présentons au sein du bâtiment B, un appartement aiu 1er étage de type 3Pièces en angle offrant de belels vues sur le centre ancien de Touques.
Particularités : Cet appartement se présente avec 2 balcons.et une double exposition
Pièce de vie de 22m2, une chambre de plus de 12m2, salle d’eau et wc indépendant.
Chauffage gaz individuel
Parking inclus dans le prix.
Emplacement idéal à deux pas des commerces et arret bus.
‘Les informations sur les risques auxquels ce bien est exposé sont disponibles sur le site Géorisques : www.georisques.gouv.fr’.
Nuances immobilières vous propose un trés bel emplacement à Blonville sur mer centre, et la mer à pieds…
Prochainement, une nouvelle résidence au calme et à l’architecture typiquement normande.
Ici,nous vous présentons un des plus bel appartement de la résidence, de type 4/5 Pièces offrant une pièce de vie de 51m2 avec terrase de 18m2 et une cuisine ouverte sur un balcon, 3 chambres confortables dont deux de plus de 12m2, deux pièces d’eau, une dressing et un espace cellier.
Un grand garage et un parking est compris dans le prix.
Le plus: Ce bien proposera une vue mer.
Habitable fin 2027.
‘Les informations sur les risques auxquels ce bien est exposé sont disponibles sur le site Géorisques : www.georisques.gouv.fr’.
Nuances immobilières vous propose un trés bel emplacement à Blonville sur mer centre, et la mer à pieds…
Prochainement, une nouvelle résidence au calme et à l’architecture typiquement normande.
Ici,nous vous présentons un des plus bel appartement de la résidence, de type 4 Pièces offrant une pièce de vie de 36m2 ouverte sur sa loggia de 7m2 exposée plein sud, 3 chambres confortables dont deux de plus de 11m2 et une de 14m2 + dressing, une salle d’eau privative avec douche à l’itallienne sans marche, wc, une autre salle d’eau et un toilette indépendant,
Un garage est compris dans le prix.
Habitable fin 2027.
‘Les informations sur les risques auxquels ce bien est exposé sont disponibles sur le site Géorisques : www.georisques.gouv.fr’.
Nuances immobilières vous propose un trés bel emplacement à Blonville sur mer centre, et la mer à pieds…
Prochainement, une nouvelle résidence au calme et à l’architecture typiquement normande.
Ici,nous vous présentons un des plus bel appartement de la résidence, un garnd 3 Pièces de 76m2 offrant une pièce de vie de 29m2 ouverte sur sa loggia de 7m2 exposée plein sud, un cellier, 2 chambres confortables de plus de 11m2 + dressing, dans une des chambres, une salle d’eau et un toilette indépendant,
Un garage est compris dans le prix.
Habitable fin 2027.
‘Les informations sur les risques auxquels ce bien est exposé sont disponibles sur le site Géorisques : www.georisques.gouv.fr’.
Nuances immobilières vous propose un trés bel emplacement à Blonville sur mer centre, et la mer à pieds…
Prochainement, une nouvelle résidence au calme et à l’architecture typiquement normande.
Ici,nous vous présentons un des plus bel appartement de la résidence, de type 2 Pièces offrant une pièce de vie de 18m2 ouverte sur sa loggia de 5m2 exposée plein sud, 1 chambre confortable, une salle d’eau avec douche à l’italliene sans marche, et un toilette indépendant,
Un parking est compris dans le prix.
Habitable fin 2027.
‘Les informations sur les risques auxquels ce bien est exposé sont disponibles sur le site Géorisques : www.georisques.gouv.fr’.
Nuances immobilières vous propose un trés bel emplacement à Blonville sur mer centre, et la mer à pieds…
Prochainement, une nouvelle résidence au calme et à l’architecture typiquement normande.
Ici,nous vous présentons un appartement au calme avec vue sur le jardin intérieur composé de 3 Pièces pour une surface habitable de 60.50m2 et offrant une pièce de vie de 27m2 ouverte sur son balcon de 7m2 exposé Est, 2 chambres confortables dont une de plus de 13m2, une salle d’eau et un toilette indépendant,
Un garage est compris dans le prix.
Habitable fin 2027.
‘Les informations sur les risques auxquels ce bien est exposé sont disponibles sur le site Géorisques : www.georisques.gouv.fr’.
Nuances immobilières vous propose un trés bel emplacement à Blonville sur mer centre, et la mer à pieds…
Prochainement, une nouvelle résidence au calme et à l’architecture typiquement normande.
Ici,nous vous présentons un bel appartement en étage supérieur composé de 5 Pièces pour une surface habitable de 110m2 et offrant une pièce de vie de 28.50m2 ouverte sur sa loggia de 12m2 exposée sud,, 3 chambres confortables 3 salles d’eau et 2 toilettes , et un cellier.
Un garage est compris dans le prix.
Habitable fin 2027.
‘Les informations sur les risques auxquels ce bien est exposé sont disponibles sur le site Géorisques : www.georisques.gouv.fr’.
Nuances immobilières vous propose à VILLERS SUR MER, à 3 minutes du parc naturel du Marais, au sein d’une nouvelle résidence aux dernières normes, un Appartement en rez de jardin de 3pièces de71m2 exposé Ouest avec jardin de 68m2 et terrasse de 11m2 exposé Sud et Ouest.
Ce bien se compose d’une Pièce de vie principale de 32m2 ouverte l’extéreur, deux chambres de 12,50m2 et 9.50m2, un placard dans l’entrée, une salle d’eau, et toilettes indépendantes.
Parking extérieur privé compris dans le prix.
Particularités : Belles prestations avec parquet stratifié dans toutes les pièces sêches, carralages en gré 45*45cm dans les pièces humides, salle d’eau avec meuble vasque, miroirs, bandeau lumineux, radiateur sèche serviettes ,pré équipement pour véhicules électriques, porte d’entrée avec sérrure 5 point, accès sécurisés).
Dernières normes phoniques et thermiques
Habitable fin 2027
‘Les informations sur les risques auxquels ce bien est exposé sont disponibles sur le site Géorisques : www.georisques.gouv.fr’.
